四ツ橋日生ビル本館 9階-No.43613
中阪 浩之ナカサカ ヒロユキ
四ツ橋日生ビル本館の豆知識
「四ツ橋日生ビル」は、大阪市西区北堀江1丁目にございます賃貸オフィスビル。
四ツ橋筋と阪神高速の間にあるブロックに位置しており、大阪メトロ四つ橋線の「四ツ橋駅」3番出口から1分、御堂筋線「心斎橋駅」からも徒歩3分、阪神高速へのアクセスも抜群のロケーションです。
約6~7坪のお部屋ですので、1~2名様向き、新規独立開業を予定されている方、小規模オフィスをお探しの企業様に最適な広さです。
また安全面に関しても、平日の日中は警備員さんが常駐しており、またセコムの警備システムもございますの、お一人でご使用の方も安心です。
その他、個別空調・エレベーター、駐車場の併設、男女別シャワートイレ、さらには貸し会議室や台車・工具・脚立など無料の貸出品もございます。
快適なオフィス空間は、ビジネス拠点としては申し分ななし。
「四ツ橋日生ビル」は、賃貸条件面も魅力的です。
賃貸オフィスの初期費用として、負担が大きい敷金が0円。礼金と賃貸保証会社の加入が必須となりますが、通常賃料の10~12ヶ月掛るイニシャルコストを抑えることが出来るのはたすかります。
四ツ橋日生ビル本館 基本情報
| 種別 | 貸事務所(物件番号:43613) |
|---|---|
| 物件名 | 四ツ橋日生ビル本館 |
| 住所 | 大阪市西区北堀江1-1-7 |
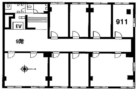
| 所在階 | 9階部分11号室 |
| 契約面積 | 7.5 坪・ 24.80 ㎡ |
| 賃料 | 総額
37,500 円 (税抜)・坪単価
5,000 円/坪 (税抜) 総額 41,250 円(税含む) |
| 共益費 | 総額 22,500 円 (税抜)・坪単価 3,000 円/坪 (税抜) 総額 24,750 円 (税含む) |
| 月額合計 | 総額 60,000 円(税抜)・坪単価 8,000 円(税抜) 総額 66,000 円 (税含む) |
| 敷金 | 無し |
| 礼金 | 165,000円(税含む) |
| 費用備考 | 賃貸保証加入要/その他諸費用あり |
| 最寄駅 |
四ツ橋線 『
四ツ橋 』
1 分
御堂筋線 『 心斎橋 』 3 分 |
| 構造 | 鉄骨鉄筋コンクリート造 10階建 /地下 1 階 |
| 築年数 | 1973/1 (リニューアル: 2008/01 ) |
| 設備
|
|
| エレベーター | 1基 |
営業マンの一言 大阪四ツ橋心斎橋のコンパクトな賃貸事務所ビル、2017年空調リニューアル完了!四ツ橋駅歩1分、好立地オフィス、イニシャルコスト格安!貸し会議室有り・台車や脚立などの貸し出しサービスあります!! |
|
| 備考 | 貸し会議室 |

※取引態様:仲介
※上記、金額は募集条件です。 条件交渉など、詳細についてはお問合せ下さい。
※広告作成中に契約済みの場合はご容赦下さい。
※図面等現況が相違する場合は現況優先にてご容赦下さい。
四ツ橋日生ビル本館の所在地周辺
物件を再検索する
四ツ橋日生ビル本館 関連物件
四ツ橋日生ビル本館 近隣のよく似た坪数の貸事務所
-
アークビルディング
大阪市西区北堀江1
四ツ橋線「四ツ橋」徒歩1分
7.37坪 -
三洋北堀江ビル
大阪市西区北堀江1
四ツ橋線「四ツ橋」徒歩1分
7.5坪 -
ラポール四ツ橋BLD
大阪市西区北堀江1
四ツ橋線「四ツ橋」徒歩3分
7.0坪 -
cor(コル)
大阪市西区北堀江1
四ツ橋線「四ツ橋」徒歩1分
8.52坪 -
ノイメゾン堀江
大阪市西区北堀江1
四ツ橋線「四ツ橋」徒歩4分
8.93坪 -
ケイエスビー新町ビル
大阪市西区新町1
四ツ橋線「四ツ橋」徒歩3分
8.75坪 -
戎四ツ橋ビル
大阪市西区新町1
四ツ橋線「四ツ橋」徒歩1分
5.36坪 -
四ツ橋KFビル
大阪市西区新町1
四ツ橋線「四ツ橋」徒歩5分
9.87坪 -
T・Tビル (TTビル)
大阪市西区新町1
四ツ橋線「四ツ橋」徒歩3分
9.61坪 -
RE-008
大阪市西区南堀江1
四ツ橋線「四ツ橋」徒歩5分
8.77坪




























