NPCビル本町 5階-No.11207
中阪 浩之ナカサカ ヒロユキ
NPCビル本町の豆知識
「NPCビル本町」は、大阪市中央区北久宝寺町2丁目にございます、賃貸事務所・テナントビル。
大阪のメインストリート“御堂筋”と並行して、市内中心部を南北に走る“堺筋”に面した地下1階・地上10階建て。
中央大通りからも近く、船場センター街やプロルート丸光、ファンビ寺内などの“繊維の街・船場”らしく、卸専門店が多く集まるロケーション。
また、中央区役所や銀行、郵便局、コンビニ、飲食店も多くあり、オフィスワーカーの日常を強力にサポートしています。
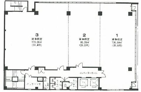
ビルの基準階面積は、約100坪。
約20坪~30坪の広さに分割できます。
但し、貸室の位置によっては採光の良くないお部屋もございますので、ご内覧の際にご確認ください。
築後30年以上となりますが、管理もしっかりした、快適なビジネス空間。
堺筋線・中央線の「堺筋本町駅」より徒歩2分の交通至便。
御堂筋線の「本町駅」も利用可能な好立地オフィスです。
NPCビル本町 基本情報
| 種別 | 貸事務所(物件番号:11207) |
|---|---|
| 物件名 | NPCビル本町 |
| 住所 | 大阪市中央区北久宝寺町2-1-2 |
| 所在階 | 5階部分号室 |
| 契約面積 | 100.0 坪・ 330.58 ㎡ |
| 最寄駅 |
堺筋線 『
堺筋本町 』
2 分
御堂筋線 『 本町 』 7 分 中央線 『 堺筋本町 』 2 分 |
| 構造 | 鉄骨鉄筋コンクリート造 10階建 /地下 1 階 |
| 築年数 | 1977/1 |
| 設備
|
|
| エレベーター | 2基 |
営業マンの一言 堺筋に面した貸し事務所。1階にドラックストア有ります堺筋本町駅徒歩2分の好立地。大通り沿いで視認性の高いオフィスビル。 |
|

※取引態様:仲介
※上記、金額は募集条件です。 条件交渉など、詳細についてはお問合せ下さい。
※広告作成中に契約済みの場合はご容赦下さい。
※図面等現況が相違する場合は現況優先にてご容赦下さい。
NPCビル本町の所在地周辺
物件を再検索する
NPCビル本町 関連物件
NPCビル本町 近隣のよく似た坪数の貸事務所
-
野村不動産大阪ビル
大阪市中央区安土町1
堺筋線「堺筋本町」徒歩1分
104.47坪 -
大阪国際ビルディング
大阪市中央区安土町2
堺筋線「堺筋本町」徒歩1分
101.41坪 -
本町明大ビル
大阪市中央区安土町2
堺筋線「堺筋本町」徒歩3分
127.0坪 -
DPスクエア堺筋本町(旧、堺筋サテライトビル)
大阪市中央区淡路町1
堺筋線「堺筋本町」徒歩5分
137.29坪 -
船場ダイヤモンドビル
大阪市中央区久太郎町2
堺筋線「堺筋本町」徒歩1分
131.0坪 -
クラボウアネックスビル
大阪市中央区久太郎町2
堺筋線「堺筋本町」徒歩1分
132.61坪 -
日本精化ビル
大阪市中央区備後町2
堺筋線「堺筋本町」徒歩4分
127.01坪 -
本町1丁目1棟貸
大阪市中央区本町1
堺筋線「堺筋本町」徒歩1分
120.91坪 -
オーク堺筋本町ビル
大阪市中央区本町1
堺筋線「堺筋本町」徒歩0分
140.65坪 -
船場旭ビル
大阪市中央区本町2
堺筋線「堺筋本町」徒歩1分
114.26坪






















