船場ダイヤモンドビル 14階-No.27383
中阪 浩之ナカサカ ヒロユキ
船場ダイヤモンドビルの豆知識
「船場ダイヤモンドビル」は、大阪市中央区久太郎町2丁目にございます賃貸オフィスビルです。
中央大通りと堺筋の交差点・南西角に位置し、1階に“三菱東京UFJ銀行船場中央支店”さん、上階には“大手前年金事務所”さんが入居されており、大変視認性の高い建物です。
交通アクセスは、地下鉄堺筋線・中央線の「堺筋本町駅」10番出口をあがった真ん前ですので、ロケーションは抜群。
「船場ダイヤモンドビル」のコンセプト“シンプルでありながら活気のあるビル”の通り、充実したオフィス機能と最高の立地を兼ね備えたハイグレードビルです。
高機能オフィスでありながら、約20坪単位の貸室が相談可能です。
セキュリティシステムは、非接触式カードとエレベーター・各フロアに関しカメラを設置した安心の体制。
また、各フロアには、リフレッシュルームが設けられ、眺望抜群の寛ぎ空間がございます。
空調は、8:00~18:00までがセントラル空調、それ以降は個別空調となっています。
環境や省エネにも積極的に取り組んでおり、人にも環境にもやさしいオフィスライフがサポートされています。
船場ダイヤモンドビル その他の貸室情報
船場ダイヤモンドビル 基本情報
| 種別 | 貸事務所(物件番号:27383) |
|---|---|
| 物件名 | 船場ダイヤモンドビル |
| 住所 | 大阪市中央区久太郎町2-1-30 |
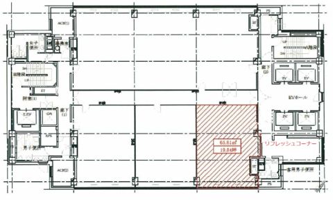
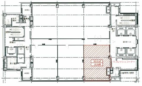
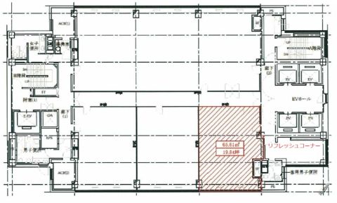
| 所在階 | 14階部分号室 |
| 契約面積 | 19.96 坪・ 65.99 ㎡ |
| 最寄駅 |
堺筋線 『
堺筋本町 』
1 分
中央線 『 堺筋本町 』 1 分 御堂筋線 『 本町 』 4 分 |
| 構造 | 鉄骨鉄筋コンクリート造 15階建 /地下 2 階 |
| 築年数 | 1995/5 【新耐震基準】 |
| 設備
|
|
| エレベーター | 5基 15人乗 |
営業マンの一言 中央大通り・堺筋面す角ビル。大阪メトロ堺筋線 堺筋本町駅真上のハイグレートビル MUFGグループをキーテナントとし安心・快適なオフィス空間を提供 セキュリティ・多様なニーズに応えるフレキシビリティーの確保など実現しています。 |
|
| 備考 | リフレッシュルーム |

※取引態様:仲介
※上記、金額は募集条件です。 条件交渉など、詳細についてはお問合せ下さい。
※広告作成中に契約済みの場合はご容赦下さい。
※図面等現況が相違する場合は現況優先にてご容赦下さい。
船場ダイヤモンドビルの所在地周辺
物件を再検索する
船場ダイヤモンドビル 関連物件
船場ダイヤモンドビル 近隣のよく似た坪数の貸事務所
-
本町ビル
大阪市中央区安土町1
堺筋線「堺筋本町」徒歩4分
18.0坪 -
プロパレス安土町ビル
大阪市中央区安土町1
堺筋線「堺筋本町」徒歩2分
16.94坪 -
グランドメゾン船場
大阪市中央区安土町1
堺筋線「堺筋本町」徒歩3分
18.66坪 -
吉川産業ビル
大阪市中央区安土町1
堺筋線「堺筋本町」徒歩2分
18.0坪 -
I.S.O(アイ・エス・オービル)
大阪市中央区淡路町2
堺筋線「堺筋本町」徒歩6分
17.08坪 -
第3エーシービル
大阪市中央区淡路町2
堺筋線「堺筋本町」徒歩8分
15.83坪 -
大阪堺筋Lタワー(旧:ランズ瓦町)
大阪市中央区瓦町1
堺筋線「堺筋本町」徒歩4分
20.0坪 -
瓦町ダイワビル(旧:がんすい)
大阪市中央区瓦町2
堺筋線「堺筋本町」徒歩2分
19.05坪 -
AXIS瓦町ビル(アクシス瓦町ビル)
大阪市中央区瓦町2
堺筋線「堺筋本町」徒歩3分
17.7坪 -
いずみやビル
大阪市中央区瓦町2
堺筋線「堺筋本町」徒歩4分
15.7坪






































