高山瓦町ビル 7階-No.30477
中阪 浩之ナカサカ ヒロユキ
高山瓦町ビルの豆知識
「高山瓦町ビル」は、大阪市中央区瓦町2丁目にございます、賃貸事務所ビル。
1990年築の7階建て。
緑の植栽をあしらった、落ち着いた雰囲気のエントランスと、白を基調とした清潔感あふれるEVホール。
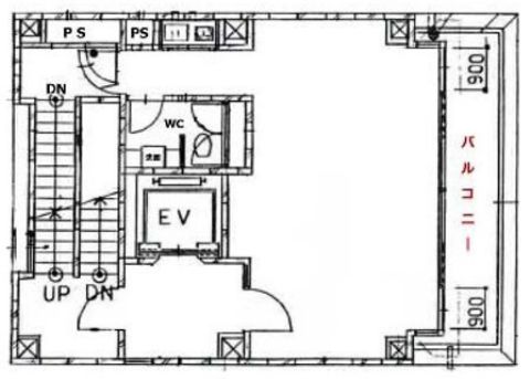
貸室は、面積約20坪のワンフロア貸しで、独立性が確保されたビジネス空間が広がっています。
但し、室内にトイレ等の水廻り部分を含みますので、実質オフィススペースに使用できる部分は契約面積より狭くなります。
ワンフロア貸しオフィスをご検討の際は、必ずご内覧及び内寸法の確認の上、事前にオフィス家具等のレイアウトをされることをおすすめします。
場所は、大阪メトロ堺筋線・中央線の「堺筋本町」より徒歩4分、御堂筋線の「本町駅」より徒歩6分。
大阪ビジネス街の中心部に位置しており、フットワークの良いビジネス拠点として、営業支店に最適です。
高山瓦町ビル 基本情報
| 種別 | 貸事務所(物件番号:30477) |
|---|---|
| 物件名 | 高山瓦町ビル
バルコニー付オフィス |
| 住所 | 大阪市中央区瓦町2-6-14 |
| 所在階 | 7階部分フロア号室 |
| 契約面積 | 11.6 坪・ 38.35 ㎡ |
| 最寄駅 |
堺筋線 『
堺筋本町 』
4 分
御堂筋線 『 本町 』 6 分 中央線 『 堺筋本町 』 4 分 |
| 構造 | S(鉄骨)造 7階建 |
| 築年数 | 1990/1 【新耐震基準】 |
| 設備
|
|
| エレベーター | 1基 9人乗 |
営業マンの一言 独立性が確保されたワンフロア・ワンテナントの賃貸事務所です。大阪本町・北浜アクセス良好、ワンフロアー貸オフィスビル!広々としたEVホールと東向きの明るい室内。 |
|
| 備考 | オートロック |

※取引態様:仲介
※上記、金額は募集条件です。 条件交渉など、詳細についてはお問合せ下さい。
※広告作成中に契約済みの場合はご容赦下さい。
※図面等現況が相違する場合は現況優先にてご容赦下さい。
高山瓦町ビルの所在地周辺
入居テナント
物件を再検索する
高山瓦町ビル 近隣のよく似た坪数の貸事務所
-
大阪国際ビルディング
大阪市中央区安土町2
堺筋線「堺筋本町」徒歩1分
10.04坪 -
キタデビル
大阪市中央区淡路町1
堺筋線「堺筋本町」徒歩4分
12.79坪 -
堺筋本町アーバンライフスクエア
大阪市中央区北久宝寺町1
堺筋線「堺筋本町」徒歩3分
13.62坪 -
ハイタウン北久宝寺
大阪市中央区北久宝寺町1
堺筋線「堺筋本町」徒歩4分
14.47坪 -
船場西川ビル
大阪市中央区北久宝寺町2
堺筋線「堺筋本町」徒歩3分
13.07坪 -
マエダビル本社ビル
大阪市中央区北久宝寺町2
堺筋線「堺筋本町」徒歩3分
12.5坪 -
三星RSビル
大阪市中央区久太郎町1
堺筋線「堺筋本町」徒歩4分
11.0坪 -
三星中央別館ビル
大阪市中央区久太郎町1
堺筋線「堺筋本町」徒歩2分
15.0坪 -
コーシンビル
大阪市中央区久太郎町1
堺筋線「堺筋本町」徒歩1分
15.0坪 -
ハイム船場
大阪市中央区久太郎町2
堺筋線「堺筋本町」徒歩2分
13.6坪



























