東明ビル 6階-No.36253
中阪 浩之ナカサカ ヒロユキ
東明ビルの豆知識
南御堂さんの南側にある賃貸事務所ビルが「東明ビル」です。場所によっては、南御堂さんの景色を室内から愉しむことができる貴重なお部屋もございます。タイミングよく“貴重な貸室”が空いていれば、即!ご内覧して確かめてください。それこそ“運命の出会い”、気に入っていただけること間違いナシです。通常なら、様々な角度からご検討をいただき、また比較対象にできる限り多くのビルをご内覧いただくことをおすすめしておりますが、「東明ビル」なら、即決していただいて大丈夫です。なぜなら、オーナー様が貸ビル業を本業として、常にテナント様が快適にご入居いただけるよう日々の管理をしっかりされており、これまでにご契約いただいた方にからも“本当に良いビルを紹介してもらってありがとう”というお言葉を多くいただいているからです。また、入居様は使用料無料の会議室があるのもメリットです。大阪センタービルに直結する地下鉄御堂筋線・中央線「本町駅」出口から徒歩3分、御堂筋から1本道路を入った角ビルで視認性も抜群。賑やかな心斎橋・南船場からも徒歩圏ですが、ビル周辺は静かな環境で、快適なオフィス空間となっております。
東明ビル 基本情報
| 種別 | 貸事務所(物件番号:36253) |
|---|---|
| 物件名 | 東明ビル |
| 住所 | 大阪市中央区北久宝寺町4-2-10 |
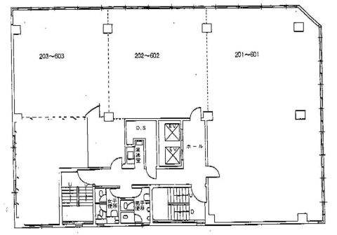
| 所在階 | 6階部分3号室 |
| 契約面積 | 19.5 坪・ 64.47 ㎡ |
| 最寄駅 |
御堂筋線 『
本町 』
3 分
四ツ橋線 『 本町 』 4 分 中央線 『 本町 』 3 分 |
| 構造 | 鉄骨鉄筋コンクリート造 9階建 /地下 1 階 |
| 築年数 | 1972/3 (リニューアル: 済 ) |
| 設備
|
|
| エレベーター | 2基 |
営業マンの一言 入居テナント様専用の貸し会議室があります。管理良好、「南御堂」目の前グッドロケーション、貸会議室併設(入居テナント様使用料無料) |
|
| 備考 | 貸し会議室 |

※取引態様:仲介
※上記、金額は募集条件です。 条件交渉など、詳細についてはお問合せ下さい。
※広告作成中に契約済みの場合はご容赦下さい。
※図面等現況が相違する場合は現況優先にてご容赦下さい。
東明ビルの所在地周辺
物件を再検索する
東明ビル 近隣のよく似た坪数の貸事務所
-
シルバービル(旧、第一シルバービル)
大阪市中央区安土町3
御堂筋線「本町」徒歩2分
20.0坪 -
プログレスビル
大阪市中央区安土町3
御堂筋線「本町」徒歩2分
18.0坪 -
淡路町パークビル
大阪市中央区淡路町2
御堂筋線「本町」徒歩7分
19.0坪 -
トーア紡第2ビル(トーア紡第二ビル)
大阪市中央区淡路町3
御堂筋線「本町」徒歩5分
19.08坪 -
OWL瓦町ビル(アウルカワラマチ)
大阪市中央区瓦町3
御堂筋線「本町」徒歩3分
15.97坪 -
ステーツ本町
大阪市中央区瓦町3
御堂筋線「本町」徒歩3分
18.64坪 -
おおきに御堂筋瓦町ビル
大阪市中央区瓦町4
御堂筋線「本町」徒歩3分
19.65坪 -
おおきにKOKODESU瓦町四丁目
大阪市中央区瓦町4
御堂筋線「本町」徒歩4分
15.83坪 -
瓦町浪速ビル
大阪市中央区瓦町4
御堂筋線「本町」徒歩3分
15.0坪 -
心斎橋クマタカ
大阪市中央区北久宝寺町3
御堂筋線「本町」徒歩4分
18.0坪
























