土佐堀トキワビル 4階-No.43088
中阪 浩之ナカサカ ヒロユキ
土佐堀トキワビルの豆知識
「土佐堀トキワビル」は、大阪市西区土佐堀1丁目にございます、賃貸事務所。
シックで落ち着いた外観の9階建て、リバーサイドビル。
貸室内から臨むリバービューの景色が、オフィスワークの効率を高めてくれること間違いナシ!
個別空調・機械警備、エレベーター、男女別シャワートイレと、ビルスペックも充実しています。
交通アクセスは、市営地下鉄四つ橋線の「肥後橋駅」より徒歩5分。
大川の北側・中之島エリアへも近く、ロケーションの良いビジネス拠点です。
土佐堀トキワビル 基本情報
| 種別 | 貸事務所(物件番号:43088) |
|---|---|
| 物件名 | 土佐堀トキワビル |
| 住所 | 大阪市西区土佐堀1-6-10 |
| 所在階 | 4階部分1号室 |
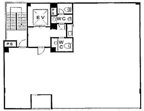
| 契約面積 | 31.67 坪・ 104.70 ㎡ |
| 最寄駅 | 四ツ橋線 『 肥後橋 』 5 分 |
| 構造 | S(鉄骨)造 9階建 |
| 築年数 | 1992/9 【新耐震基準】 |
| 設備
|
|
| エレベーター | 1基 |
営業マンの一言 リバーサイドで眺望良好な貸しテナント。店舗使用もOKです。業種はご相談ください。四ツ橋線 肥後橋駅徒歩5分 リバービューと両面採光が採れる賃貸オフィス。 |
|
| 備考 | オートロック |

※取引態様:仲介
※上記、金額は募集条件です。 条件交渉など、詳細についてはお問合せ下さい。
※広告作成中に契約済みの場合はご容赦下さい。
※図面等現況が相違する場合は現況優先にてご容赦下さい。
土佐堀トキワビルの所在地周辺
入居テナント
物件を再検索する
土佐堀トキワビル 関連物件
土佐堀トキワビル 近隣のよく似た坪数の貸事務所
-
肥後橋レックスビル
大阪市西区江戸堀1
四ツ橋線「肥後橋」徒歩1分
34.23坪 -
太陽ビル
大阪市西区江戸堀1
四ツ橋線「肥後橋」徒歩1分
30.21坪 -
肥後橋渡辺ビル
大阪市西区江戸堀1
四ツ橋線「肥後橋」徒歩1分
30.56坪 -
アール肥後橋ビル
大阪市西区江戸堀1
四ツ橋線「肥後橋」徒歩1分
30.63坪 -
肥後橋ニッタイビル
大阪市西区江戸堀1
四ツ橋線「肥後橋」徒歩1分
31.17坪 -
昭和ビルディング(江戸堀)
大阪市西区江戸堀1
四ツ橋線「肥後橋」徒歩3分
35.93坪 -
肥後橋エフビル(旧:肥後橋延三)
大阪市西区江戸堀1
四ツ橋線「肥後橋」徒歩1分
31.13坪 -
肥後橋IPビル
大阪市西区江戸堀1
四ツ橋線「肥後橋」徒歩2分
31.46坪 -
肥後橋イシカワビル
大阪市西区江戸堀1
四ツ橋線「肥後橋」徒歩4分
32.4坪 -
江戸堀グロウスビル
大阪市西区江戸堀1
四ツ橋線「肥後橋」徒歩5分
30.87坪


























