あべのルシアス 6階-No.44456
営業スタッフ紹介
中阪 浩之ナカサカ ヒロユキ
あべのルシアスの豆知識
「あべのルシアスビル」は、大阪市阿倍野区阿部野橋筋1丁目にございます、賃貸事務所です。
低層階と最上階にショップやレストラン、映画館、フットネス等、6階~14階がオフィスフロアとなる、地下3階・地上16階建ての大型複合商業ビル。
JR・地下鉄御堂筋線・谷町線の「天王寺駅」、近鉄線の「大阪阿部野橋駅」へは地下街で直結・徒歩約3分の好アクセス。
隣のあべのアポロビルとは複数階が連絡通路で繋がっています。
また、地下に時間貸し・月極あわせて約300台の駐車場もございます。
オフィスフロア共用部には、自販機を備えたリフレッシュルーム、女性トイレにはパウダーコーナーなど、充実のビルスペックがオフィスワークサポート。
貸室面積は、20坪台からのご紹介が可能です。
あべのルシアス その他の貸室情報
あべのルシアス 基本情報
| 種別 | 貸事務所(物件番号:44456) |
|---|---|
| 物件名 | あべのルシアス |
| 住所 | 大阪市阿倍野区阿倍野筋1-5-1 |
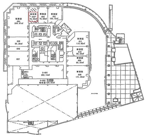
| 所在階 | 6階部分1号室 |
| 契約面積 | 30.47 坪・ 100.73 ㎡ |
| 最寄駅 |
御堂筋線 『
天王寺 』
5 分
谷町線 『 天王寺 』 7 分 環状線 『 天王寺 』 5 分 |
| 構造 | 鉄骨鉄筋コンクリート造 16階建 |
| 築年数 | 1998/12 【新耐震基準】 |
| 設備
|
|
| エレベーター | 12基 |
営業マンの一言 天王寺駅から地下街直結の好アクセスな賃貸事務所大阪メトロ御堂筋線 天王寺駅徒歩5分 谷町線・JR線・近鉄線利用可能 天王寺・阿倍野エリアのオフィスと店舗の大型複合商業ビル。高層階にはスカイレストラン、無料展望スペースも設置。 |
|
| 備考 | 駅直結ビル/リフレッシュルーム |

※取引態様:仲介
※上記、金額は募集条件です。 条件交渉など、詳細についてはお問合せ下さい。
※広告作成中に契約済みの場合はご容赦下さい。
※図面等現況が相違する場合は現況優先にてご容赦下さい。
あべのルシアスの所在地周辺
ストリートビューを表示▼
入居テナント
物件を再検索する
あべのルシアス 関連物件
あべのルシアス 近隣のよく似た坪数の貸事務所
-
サンパール天王寺ビル
大阪市天王寺区大道1
御堂筋線「天王寺」徒歩5分
33.32坪 -
あべのハルカス(阿部野橋ターミナル)
大阪市阿倍野区阿倍野筋1
御堂筋線「天王寺」徒歩0.1分
32.16坪



















