コットンニッセイビル

コットンニッセイビル 貸室情報
| 階 | 号室 | 坪数 | ㎡数 | 賃料 | 共益費 | 敷金 | |
|---|---|---|---|---|---|---|---|
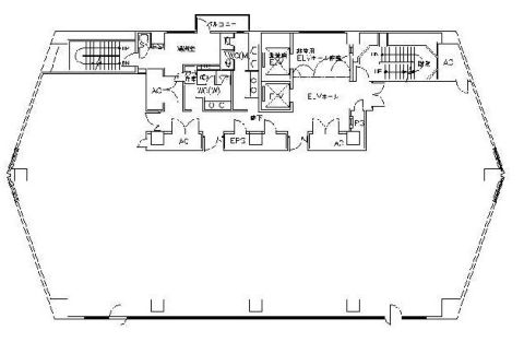
| 1階 | 80.8坪 | 267.11㎡ | お電話・メールにて お問い合わせください。 | ![]() |
|||
| 3階 | 42.0坪 | 138.85㎡ | お電話・メールにて お問い合わせください。 | ![]() |
|||
| 5階 | 23.79坪 | 78.65㎡ | お電話・メールにて お問い合わせください。 | ![]() |
|||
| 10階 | 42.0坪 | 138.85㎡ | お電話・メールにて お問い合わせください。 | ![]() |
|||
| 種別 | 貸事務所 |
|---|---|
| 物件名 | コットンニッセイビル |
| 住所 | 大阪市西区靱本町1-8-2 |
| 最寄駅 | 四ツ橋線 『
本町 』
2 分
御堂筋線 『 本町 』 4 分 四ツ橋線 『 肥後橋 』 6 分 |
| 構造 | 10階建 /地下 1 階 |
| 築年数 | 1993/1 【新耐震基準】 |
| 設備
|
|
営業マンの一言 全貸室採光良!竣工1993年、大阪メトロ四つ橋線肥後橋駅徒歩6分。視認性の高い事務所ビル。 |
|

※取引態様:仲介
※上記、金額は募集条件です。 条件交渉など、詳細についてはお問合せ下さい。
※広告作成中に契約済みの場合はご容赦下さい。
※図面等現況が相違する場合は現況優先にてご容赦下さい。







中阪 浩之










