タツト靭公園ビル

中阪 浩之ナカサカ ヒロユキ
「タツト靱公園ビル」は、大阪市西区京町堀1丁目にございます賃貸事務所。
靱公園(東園)北側に面した、コンパクトな9階建て。
外壁の“白”と公園の“緑”とのコントラストが美しく、小ぶりながら視認性の高いオフィスビルです。
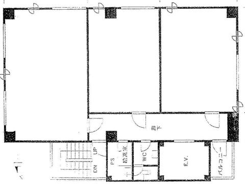
貸室は30坪弱のワンフロア貸しが基本ですが、分割フロアもございますので、お問い合わせください。
使いやすい広さと文句なしの眺望が、効率良いオフィスワークをサポートすること間違いなし。
人気の大阪ビジネス拠点です。
大阪市営地下鉄四つ橋線の「肥後橋駅」または「本町駅」より徒歩7分の交通アクセスです。
| 種別 | 貸事務所 |
|---|---|
| 物件名 | タツト靭公園ビル |
| 住所 | 大阪市西区京町堀1-14-24 |
| 最寄駅 | 四ツ橋線 『
肥後橋 』
7 分
四ツ橋線 『 本町 』 7 分 |
| 構造 | S(鉄骨)造 9階建 |
| 築年数 | 1983/5 |
| 設備
|
|
営業マンの一言 靱公園に隣接した緑あふれるオフィス!人気エリア靱公園に面した賃貸事務所ビル!初期費用も安くお勧めです。 |
|

※取引態様:仲介
※上記、金額は募集条件です。 条件交渉など、詳細についてはお問合せ下さい。
※広告作成中に契約済みの場合はご容赦下さい。
※図面等現況が相違する場合は現況優先にてご容赦下さい。
タツト靭公園ビルの所在地周辺
物件を再検索する
近隣のよく似た坪数の貸事務所
-
プロト大阪
大阪市西区京町堀1
四ツ橋線「肥後橋」徒歩5分
11.5坪 -
倉庵ビル
大阪市西区江戸堀1
四ツ橋線「肥後橋」徒歩2分
14.9坪 -
サンライズ肥後橋ビル
大阪市西区江戸堀1
四ツ橋線「肥後橋」徒歩1分
10.24坪 -
肥後橋三宮ビル
大阪市西区江戸堀1
四ツ橋線「肥後橋」徒歩1分
11.96坪 -
小谷ビル(江戸堀)
大阪市西区江戸堀1
四ツ橋線「肥後橋」徒歩2分
10.5坪 -
ウエスト船場ビル
大阪市西区江戸堀1
四ツ橋線「肥後橋」徒歩2分
14.26坪 -
DKビル(宮浦ビル)
大阪市西区京町堀1
四ツ橋線「肥後橋」徒歩2分
14.1坪 -
安田ビル(新・本館)
大阪市西区京町堀1
四ツ橋線「肥後橋」徒歩6分
12.1坪 -
福岡ビル
大阪市西区京町堀1
四ツ橋線「肥後橋」徒歩3分
14.7坪 -
ラグジェリア京町堀(旧:大石ビル)
大阪市西区京町堀1
四ツ橋線「肥後橋」徒歩4分
12.68坪




















