マルイト難波ビル

営業スタッフ紹介
堀中 忠久ホリナカ タダヒサ
マルイト難波ビルの豆知識
「マルイト難波ビル」は、大阪市浪速区湊町1丁目にございます、賃貸事務所・テナント大型複合ビル。
千日前通り沿い、地下から3階に物販店舗、7階~20階がオフィスフロア、高層階には“ホテルモントレグラスミア大阪”が入る、地上31階建て・なんばエリアのランドマークビルです。
JR「難波駅」に隣接、地下鉄四つ橋線・御堂筋線・千日前線の「なんば駅」30A号出入口より徒歩1分。
近鉄線・南海線の「難波駅」からも徒歩5分の交通至便。
マルチアクセスで、フットワークの良いビジネス拠点です。
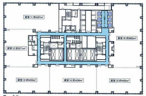
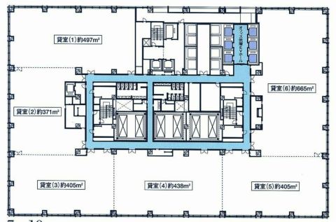
オフィスフロアの基準階面積は、約840坪。
最小約122坪からの貸室がございます。
エレベータ10基、OAフロア、電気容量、駐車場、貸室天高3M等、ハイグレードかつ高性能なペックがオフィスワークを強力サポート。効率良いワークスペースが確保されています。
マルイト難波ビル 貸室情報
| 階 | 号室 | 坪数 | ㎡数 | 賃料 | 共益費 | 敷金 | |
|---|---|---|---|---|---|---|---|
| 9階 | 2 | 112.32坪 | 371.31㎡ | お電話・メールにて お問い合わせください。 | ![]() |
||
| 14階 | 5 | 122.63坪 | 405.39㎡ | お電話・メールにて お問い合わせください。 | ![]() |
||
| 種別 | 貸事務所 |
|---|---|
| 物件名 | マルイト難波ビル |
| 住所 | 大阪市浪速区湊町1-2-3 |
| 最寄駅 | 御堂筋線 『 なんば 』 1 分 |
| 構造 | 鉄骨鉄筋コンクリート造 31階建 /地下 1 階 |
| 築年数 | 2009/7 【新耐震基準】 |
| 設備
|
|
営業マンの一言 天井高3Mで開放感のあるオフィスです。大阪メトロ四ツ橋線・御堂筋線 「なんば」駅直結!難波エリア最大級のスペック「ホテルモントレー グラミアス大阪」との複合ランドマークビル |
|
| 備考 | 駅直結ビル/貸し会議室/リフレッシュルーム/オートロック |

※取引態様:仲介
※上記、金額は募集条件です。 条件交渉など、詳細についてはお問合せ下さい。
※広告作成中に契約済みの場合はご容赦下さい。
※図面等現況が相違する場合は現況優先にてご容赦下さい。
マルイト難波ビルの所在地周辺
入居テナント
物件を再検索する
近隣のよく似た坪数の貸事務所
-
クロスホテル大阪
大阪市中央区心斎橋筋2
御堂筋線「なんば」徒歩3分
290.7坪











