ハレオフィス新大阪

ハレオフィス新大阪 貸室情報
| 種別 | 貸事務所 |
|---|---|
| 物件名 | ハレオフィス新大阪 |
| 住所 | 大阪市東淀川区東中島1-21-29 |
| 最寄駅 | 御堂筋線 『 新大阪 』 4 分 |
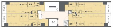
| 構造 | 鉄筋コンクリート造 10階建 |
| 築年数 | 2017/4 【新耐震基準】 |
| 設備
|
|
営業マンの一言 5名様向けオフィス新大阪駅前の「暮らすように働く」ホテル型レンタルオフィス |
|

※取引態様:仲介
※上記、金額は募集条件です。 条件交渉など、詳細についてはお問合せ下さい。
※広告作成中に契約済みの場合はご容赦下さい。
※図面等現況が相違する場合は現況優先にてご容赦下さい。
ハレオフィス新大阪の所在地周辺
物件を再検索する
近隣のよく似た坪数の貸事務所
-
第7新大阪ビル
大阪市淀川区西中島5
御堂筋線「新大阪」徒歩4分
8.2坪 -
新大阪サンアールビル北館
大阪市淀川区西中島5
御堂筋線「新大阪」徒歩4分
8.12坪 -
オリエンタル新大阪ビル
大阪市淀川区西中島7
御堂筋線「新大阪」徒歩2分
6.23坪 -
新大阪阪急ビル
大阪市淀川区宮原1
御堂筋線「新大阪」徒歩1分
6.86坪 -
日宝新大阪第2ビル
大阪市淀川区西宮原1
御堂筋線「新大阪」徒歩5分
7.83坪 -
SORA新大阪21
大阪市淀川区西宮原2
御堂筋線「新大阪」徒歩4分
6.28坪 -
新大阪八千代ビル
大阪市淀川区宮原4
御堂筋線「新大阪」徒歩3分
6.29坪 -
PMO EX新大阪・H1O新大阪
大阪市淀川区宮原4
御堂筋線「新大阪」徒歩5分
7.31坪 -
新大阪千代田ビル別館
大阪市淀川区宮原4
御堂筋線「新大阪」徒歩6分
7.04坪 -
新大阪千代田ビル
大阪市淀川区宮原4
御堂筋線「新大阪」徒歩5分
7.72坪




中阪 浩之













