新中島ビル

堀中 忠久ホリナカ タダヒサ
「新中島ビル」は、大阪市淀川区西中島5丁目にございます賃貸事務所。
淀川通りに面した、レンガタイル貼り外観の9階建てビル。
築後30年以上になりますが、日々の管理が良く、2011年には全面リニューアル済の大阪オフィス拠点です。
高級感溢れるエントランス、快適性がアップしたトイレや給湯室、大型液晶TVや自販機が設置された休憩室は商談スペースとしても使用OK。
無料の会議室や喫煙室もございます。
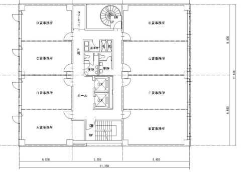
貸室の広さは、約9坪のスモールオフィスから50坪弱のお部屋まで。
テナント様のニーズにあわせたオフィス環境設定が可能です。
大阪市営地下鉄・御堂筋線の「西中島南方駅」、阪急線の「南方駅」から、徒歩2分の交通至便。
ビル南側には淀川河川公園が広がる、ロケーション抜群の大阪事務所です。
新中島ビル 貸室情報
| 種別 | 事務所 |
|---|---|
| 物件名 | 新中島ビル |
| 住所 | 大阪市淀川区西中島1-9-20 |
| 最寄駅 | 御堂筋線 『 西中島南方 』 3 分 |
| 構造 | 鉄骨鉄筋コンクリート造 9階建 |
| 築年数 | 1977/1 (リニューアル: 2011/2 ) |
| 設備
|
|
営業マンの一言 和風仕様・床暖房が完備されているなど付加価値がある区画大阪メトロ御堂筋線 西中島南方駅徒歩3分 阪急線利用可能 全館リニューアル済み 会議室有ります。 |
|
| 備考 | 貸し会議室/リフレッシュルーム |

※取引態様:仲介
※上記、金額は募集条件です。 条件交渉など、詳細についてはお問合せ下さい。
※広告作成中に契約済みの場合はご容赦下さい。
※図面等現況が相違する場合は現況優先にてご容赦下さい。
新中島ビルの所在地周辺
物件を再検索する
近隣のよく似た坪数の貸事務所
-
新大阪第二日大ビル
大阪市東淀川区東中島1
御堂筋線「西中島南方」徒歩5分
12.0坪 -
K2-EAST
大阪市淀川区木川東2
御堂筋線「西中島南方」徒歩5分
10.3坪 -
ミツフ第2ビル
大阪市淀川区木川東3
御堂筋線「西中島南方」徒歩5分
15.0坪 -
オパル新大阪ビル
大阪市淀川区木川東4
御堂筋線「西中島南方」徒歩6分
10.94坪 -
新大阪サンアールビル南別館
大阪市淀川区西中島1
御堂筋線「西中島南方」徒歩3分
14.26坪 -
新大阪サンアールビル南館
大阪市淀川区西中島1
御堂筋線「西中島南方」徒歩3分
11.66坪 -
メゾン淀川 (スモールオフィス)
大阪市淀川区西中島1
御堂筋線「西中島南方」徒歩2分
14.04坪 -
三基ビル
大阪市淀川区西中島1
御堂筋線「西中島南方」徒歩2分
13.37坪 -
アルバート新大阪ビル
大阪市淀川区西中島1
御堂筋線「西中島南方」徒歩4分
12.33坪 -
NLCサクセスビルイースト
大阪市淀川区西中島3
御堂筋線「西中島南方」徒歩3分
14.86坪






















