天神第一ビル

中阪 浩之ナカサカ ヒロユキ
「天神第一ビル」は、大阪市淀川区西中島4丁目にございます賃貸事務所。
新御堂筋(国道423号線)の西側角地に位置する、10階建てオフィス。
大阪市営地下鉄御堂筋線の「西中島南方駅」より徒歩2分。
「新大阪駅」より徒歩9分、阪急京都線の「2分」と、好ロケーションのビジネス拠点です。
建物竣工は1974年ですが、2014年12月にロノベーション完工。
ステータスあるオフィスはもちろん、訪れるかたにも品位の高さを感じさせるエントランスホール。
シックな中にも、さりげない贅沢感がほどこされた空間がひろがっています。
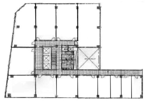
貸室は、約6坪~約120坪まで、バリエーション豊かな広さが提供されています。
天神第一ビル 貸室情報
| 種別 | 貸事務所 |
|---|---|
| 物件名 | 天神第一ビル |
| 住所 | 大阪市淀川区西中島4-2-26 |
| 最寄駅 | 御堂筋線 『
西中島南方 』
1 分
御堂筋線 『 新大阪 』 9 分 |
| 構造 | 鉄骨鉄筋コンクリート造 10階建 |
| 築年数 | 1974/10 (リニューアル: 2014/12 ) |
| 設備
|
|
営業マンの一言 無料の打ち合わせスペース有ります大阪メトロ御堂筋線・西中島南方駅1分、角ビル駅直ぐの新御堂筋に面したオフィスビル。全館リニューアル済み |
|

※取引態様:仲介
※上記、金額は募集条件です。 条件交渉など、詳細についてはお問合せ下さい。
※広告作成中に契約済みの場合はご容赦下さい。
※図面等現況が相違する場合は現況優先にてご容赦下さい。
天神第一ビルの所在地周辺
物件を再検索する
近隣のよく似た坪数の貸事務所
-
新大阪第二日大ビル
大阪市東淀川区東中島1
御堂筋線「西中島南方」徒歩5分
12.0坪 -
K2-EAST
大阪市淀川区木川東2
御堂筋線「西中島南方」徒歩5分
10.3坪 -
ミツフ第2ビル
大阪市淀川区木川東3
御堂筋線「西中島南方」徒歩5分
15.0坪 -
オパル新大阪ビル
大阪市淀川区木川東4
御堂筋線「西中島南方」徒歩6分
10.94坪 -
新大阪ストロングビル
大阪市淀川区西中島1
御堂筋線「西中島南方」徒歩2分
12.14坪 -
新中島ビル
大阪市淀川区西中島1
御堂筋線「西中島南方」徒歩3分
10.0坪 -
新大阪サンアールビル南別館
大阪市淀川区西中島1
御堂筋線「西中島南方」徒歩3分
14.26坪 -
新大阪サンアールビル南館
大阪市淀川区西中島1
御堂筋線「西中島南方」徒歩3分
11.66坪 -
メゾン淀川 (スモールオフィス)
大阪市淀川区西中島1
御堂筋線「西中島南方」徒歩2分
14.04坪 -
三基ビル
大阪市淀川区西中島1
御堂筋線「西中島南方」徒歩2分
13.37坪


































