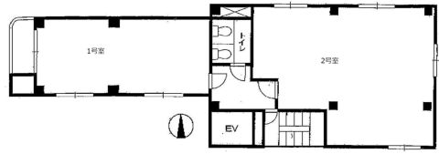
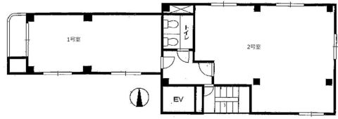
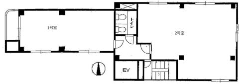
グリフォンビル

| 種別 | 貸事務所 |
|---|---|
| 物件名 | グリフォンビル |
| 住所 | 大阪市北区天神橋4-7-11 |
| 最寄駅 | 堺筋線 『
扇町 』
1 分
環状線 『 天満 』 3 分 |
| 構造 | S(鉄骨)造 7階建 |
| 築年数 | 1988/7 【新耐震基準】 |
| 設備
|
|
営業マンの一言 天神橋筋面す 諸条件相談OK |
|

※取引態様:仲介
※上記、金額は募集条件です。 条件交渉など、詳細についてはお問合せ下さい。
※広告作成中に契約済みの場合はご容赦下さい。
※図面等現況が相違する場合は現況優先にてご容赦下さい。




中阪 浩之









