近鉄堂島ビル

中阪 浩之ナカサカ ヒロユキ
「近鉄堂島ビル」は、大阪市北区堂島2丁目にございます賃貸事務所。
四ツ橋筋沿い、堂島1交差点の北西角地に位置する、地下2階・地上21階建てのオフィスビル。
1983年竣工。1984年には第4回大阪まちなみ賞を受賞した、西梅田エリアの高層ビルです。
建物前の公開空地には、植栽と小スペースを設け、街並みにゆとりと彩りを演出しています。
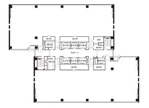
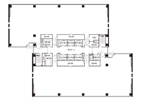
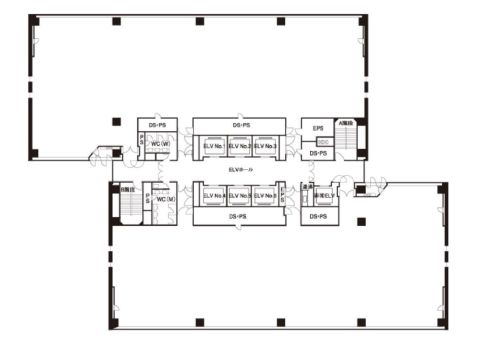
貸室基準階面積は、約304坪。
約35坪からの分割対応も可能ですので、お問い合わせください。
堂島地下センターへの出入り口がビル前にあり、四つ橋線の「西梅田駅」やJR「大阪駅」、御堂筋線他各線「梅田駅」へもスムースアクセスが可能。
館内をはじめ、周辺にはコンビニや飲食店、銀行等も多くそろっており、オフィスワーカーをサポートしてくれます。
近鉄堂島ビル 貸室情報
| 階 | 号室 | 坪数 | ㎡数 | 賃料 | 共益費 | 敷金 | |
|---|---|---|---|---|---|---|---|
| B1階 | C | 23.3坪 | 77.03㎡ | お電話・メールにて お問い合わせください。 | ![]() |
||
| B1階 | N | 31.46坪 | 104.00㎡ | お電話・メールにて お問い合わせください。 | ![]() |
||
| 種別 | 貸事務所 |
|---|---|
| 物件名 | 近鉄堂島ビル |
| 住所 | 大阪市北区堂島2-2-2 |
| 最寄駅 | 四ツ橋線 『
西梅田 』
1 分
御堂筋線 『 梅田 』 5 分 四ツ橋線 『 肥後橋 』 4 分 |
| 構造 | 鉄骨鉄筋コンクリート造 21階建 /地下 2 階 |
| 築年数 | 1983/3 |
| 設備
|
|
営業マンの一言 西梅田・堂島エリアのハイグレード賃貸事務所。大阪市北区堂島2丁目にある超高層ビル 大阪メトロ四ツ橋線 「西梅田」駅. JR東西線「北新地」駅 と地下道で直結徒歩3分. 1983年3月竣工 西梅田ランドマークビル |
|
| 備考 | 駅直結ビル/日祝、来店可能サービス型オフィス |

※取引態様:仲介
※上記、金額は募集条件です。 条件交渉など、詳細についてはお問合せ下さい。
※広告作成中に契約済みの場合はご容赦下さい。
※図面等現況が相違する場合は現況優先にてご容赦下さい。
近鉄堂島ビルの所在地周辺
物件を再検索する
近隣のよく似た坪数の貸事務所
-
グラングリーン大阪パークタワー
大阪市北区大深町
四ツ橋線「西梅田」徒歩1分
60.21坪 -
京富ビル
大阪市北区曾根崎新地1
四ツ橋線「西梅田」徒歩1分
61.5坪 -
堂北ダイビル
大阪市北区堂島1
四ツ橋線「西梅田」徒歩3分
66.1坪 -
堂島セントラルビル
大阪市北区堂島浜1
四ツ橋線「西梅田」徒歩6分
62.5坪






















