赤坂天六ビル

営業スタッフ紹介
中阪 浩之ナカサカ ヒロユキ
赤坂天六ビルの豆知識
「赤坂天六ビル」は大阪市北区浪花町にある賃貸事務所ビルです。
地下鉄堺筋線・谷町線の「天神橋筋六丁目」駅、13番出口から1分、JR大阪環状線「天満」駅から徒歩5分です。
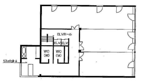
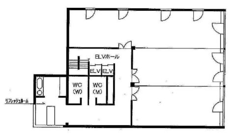
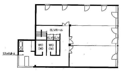
天神橋筋という大きな通りに位置し、個別空調、駐車場併設(立体)、エレベーター2基、男女別シャワートイレ、さらには各階にリフレッシュコーナーが設置された充実のオフィスビルです。
天神橋筋と渡って東側には、日本一の長さで有名な「天神橋筋商店街」があります。
大阪らしい活気と魅力にあふれたエリアで、仕事の合間の息抜きに、ストレスの発散にと最適な場所ではないでしょうか。
「赤坂天六ビル」の敷引きは“スライド”といって、年数に応じて金額が変わっていきます。1年未満で退去した場合は賃料の3ヶ月分、2年未満で退去した場合は賃料の2ヶ月分、4年以上の場合は敷き引きはナシとなります。つまり、短期間で退去の場合は差引かれる金額が大きくなり、入居期間が長いほど返金額が多くなります。ただし、年数や差引かれる割合は、ビル毎によって違ってきますので、“敷引きはスライドです”という場合は、きっちりした数字をご確認ください。
| 種別 | 貸事務所 |
|---|---|
| 物件名 | 赤坂天六ビル |
| 住所 | 大阪市北区浪花町12-24 |
| 最寄駅 | 堺筋線 『
天神橋六丁目 』
1 分
谷町線 『 天神橋六丁目 』 1 分 |
| 構造 | 鉄骨鉄筋コンクリート造 8階建 /地下 1 階 |
| 築年数 | 1991/6 【新耐震基準】 (リニューアル: 2012/09 ) |
| 設備
|
|
営業マンの一言 天神橋六丁目徒歩1分。ハイグレードビル”条件は、じゅうぶんに相談できます。「天神橋六丁目」目の前の美築ビル! 「天神橋筋六丁目」駅徒歩1分の賃貸事務所ビル |
|
| 備考 | リフレッシュルーム |

※取引態様:仲介
※上記、金額は募集条件です。 条件交渉など、詳細についてはお問合せ下さい。
※広告作成中に契約済みの場合はご容赦下さい。
※図面等現況が相違する場合は現況優先にてご容赦下さい。

















