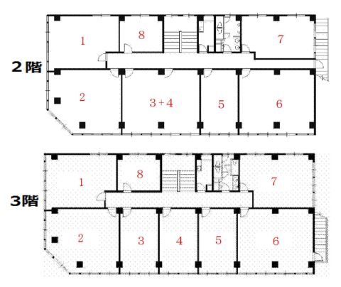
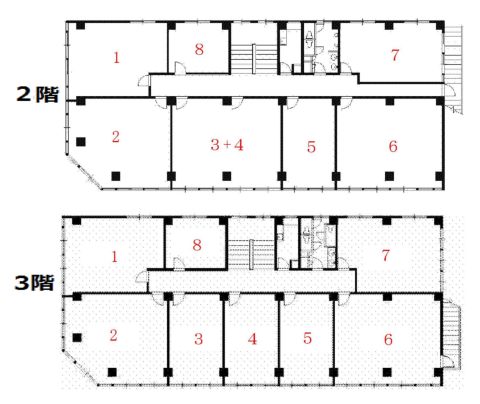
昭栄ビル南館

| 種別 | 店舗・事務所 |
|---|---|
| 物件名 | 昭栄ビル南館 |
| 住所 | 大阪市北区西天満4-1-11 |
| 最寄駅 | 堺筋線 『 南森町 』 10 分 |
| 構造 | 鉄筋コンクリート造 3階建 |
| 築年数 | 1963/6 |
| 設備
|
|
営業マンの一言 |
|

※取引態様:仲介
※上記、金額は募集条件です。 条件交渉など、詳細についてはお問合せ下さい。
※広告作成中に契約済みの場合はご容赦下さい。
※図面等現況が相違する場合は現況優先にてご容赦下さい。





中阪 浩之








