ACCESSビル(アクセスビル)

ACCESSビル(アクセスビル) 貸室情報
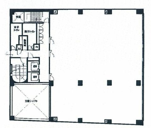
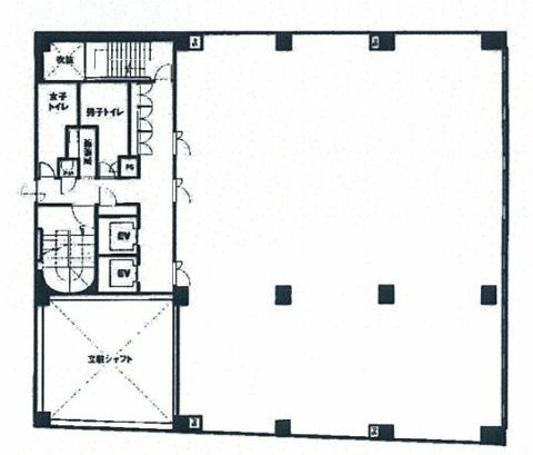
| 階 | 号室 | 坪数 | ㎡数 | 賃料 | 共益費 | 保証金 | |
|---|---|---|---|---|---|---|---|
| 3階 | 西 | 33.6坪 | 111.08㎡ | 228,480 円 | 110,880 円 | 1ヶ月 | ![]() |
| 4階 | 西 | 55.04坪 | 181.96㎡ | 374,272 円 | 181,632 円 | 1ヶ月 | ![]() |
| 5階 | 西 | 31.73坪 | 104.90㎡ | 215,764 円 | 104,709 円 | 1ヶ月 | ![]() |
| 6階 | 西 | 34.27坪 | 113.29㎡ | 233,036 円 | 113,091 円 | 1ヶ月 | ![]() |
| 種別 | 貸事務所 |
|---|---|
| 物件名 | ACCESSビル(アクセスビル) |
| 住所 | 大阪市北区西天満4-6-18 |
| 最寄駅 | 堺筋線 『
南森町 』
9 分
御堂筋線 『 淀屋橋 』 9 分 御堂筋線 『 梅田 』 8 分 |
| 構造 | 鉄骨鉄筋コンクリート造 7階建 |
| 築年数 | 1988/8 【新耐震基準】 |
| 設備
|
|
営業マンの一言 大阪裁判所近くの大型ビジネスビル |
|

※取引態様:仲介
※上記、金額は募集条件です。 条件交渉など、詳細についてはお問合せ下さい。
※広告作成中に契約済みの場合はご容赦下さい。
※図面等現況が相違する場合は現況優先にてご容赦下さい。
ACCESSビル(アクセスビル)の所在地周辺
物件を再検索する
近隣のよく似た坪数の貸事務所
-
南森町丸井ビル
大阪市北区南森町1
堺筋線「南森町」徒歩1分
31.04坪 -
103ビル
大阪市北区菅原町
堺筋線「南森町」徒歩6分
35.2坪 -
豊和第二ビル
大阪市北区天神橋1
堺筋線「南森町」徒歩6分
30.52坪 -
AXIS南森町ⅡBLD
大阪市北区天神橋2
堺筋線「南森町」徒歩0.2分
36.27坪 -
盛岡 ビル
大阪市北区天神橋2
堺筋線「南森町」徒歩1分
30.0坪 -
南森町イシカワビル
大阪市北区天神橋3
堺筋線「南森町」徒歩3分
33.84坪 -
NISHITENMA GTC BLDG(旧:リアライズ西天満)
大阪市北区西天満3
堺筋線「南森町」徒歩5分
38.1坪 -
ユニ老松ビル
大阪市北区西天満3
堺筋線「南森町」徒歩5分
30.54坪 -
西天満パークビル3号館
大阪市北区西天満3
堺筋線「南森町」徒歩4分
33.1坪 -
LEE PLAZAビル(リープラザビル)
大阪市北区西天満4
堺筋線「南森町」徒歩5分
34.24坪





堀中 忠久













