ユーアイビル (西天満6丁目)

堀中 忠久ホリナカ タダヒサ
「ユーアイビル」は、大阪市北区西天満6丁目にございます、賃貸事務所・テナントビルです。
“梅田”を徒歩圏とする、コンパクト&リーズナブルオフィス。
エレベーターが無く階段のみですが、ローコストな条件ですので、倉庫としてのご利用にもオススメ。
最寄は、大阪市営地下鉄・谷町線の「東梅田駅」または、谷町線・堺筋線の「南森町駅」より徒歩6分の交通至便。
JR東西線の「北新地駅」や各線「梅田駅」も利用できる、フットワークの良いビジネス拠点です。
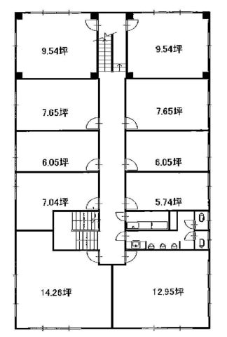
貸室は、約5~10坪のお部屋が中心。
新規独立・開業の方や、少人数の事務所に最適です。
警備システムはありませんが、夜間はオートロックになります。
ユーアイビル (西天満6丁目) 貸室情報
| 種別 | 貸事務所 |
|---|---|
| 物件名 | ユーアイビル (西天満6丁目) |
| 住所 | 大阪市北区西天満6-2-3 |
| 最寄駅 | 谷町線 『
東梅田 』
6 分
堺筋線 『 南森町 』 6 分 |
| 構造 | S(鉄骨)造 4階建 |
| 築年数 | 1961/7 |
| 設備
|
|
営業マンの一言 大阪メトロ谷町線・堺筋線 南森町駅徒歩6分 24時間利用可能 南森町エリア格安テナント物件 |
|

※取引態様:仲介
※上記、金額は募集条件です。 条件交渉など、詳細についてはお問合せ下さい。
※広告作成中に契約済みの場合はご容赦下さい。
※図面等現況が相違する場合は現況優先にてご容赦下さい。
ユーアイビル (西天満6丁目)の所在地周辺
物件を再検索する
近隣のよく似た坪数の貸事務所
-
AXIS UMEDA BLD(アクシス梅田)
大阪市北区神山町
谷町線「東梅田」徒歩4分
7.17坪 -
グラン・ビルド金本
大阪市北区神山町
谷町線「東梅田」徒歩6分
9.52坪 -
祥慶ビル
大阪市北区太融寺町
谷町線「東梅田」徒歩5分
10.0坪 -
阪急東ビル
大阪市北区堂山町
谷町線「東梅田」徒歩3分
9.29坪 -
梅田シティビラアクトⅢ
大阪市北区堂山町
谷町線「東梅田」徒歩4分
8.59坪 -
東梅田八千代ビル
大阪市北区中崎西2
谷町線「東梅田」徒歩4分
8.35坪 -
HAYAKAWA BLD (旧 千寿)
大阪市北区西天満4
谷町線「東梅田」徒歩8分
6.95坪 -
重光ビル
大阪市北区西天満4
谷町線「東梅田」徒歩7分
9.66坪 -
プラザ梅新ビル
大阪市北区西天満4
谷町線「東梅田」徒歩5分
5.09坪 -
トレックノース梅田ビル
大阪市北区野崎町
谷町線「東梅田」徒歩5分
9.8坪


















