アーバンエース東天満ビル

営業スタッフ紹介
中阪 浩之ナカサカ ヒロユキ
| 種別 | 事務所 |
|---|---|
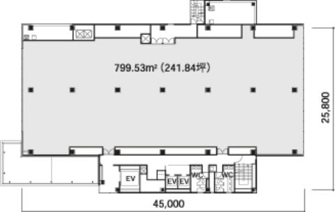
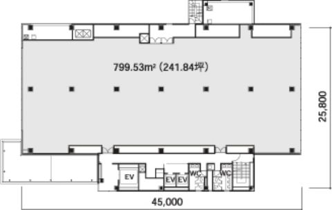
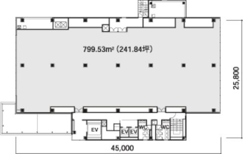
| 物件名 | アーバンエース東天満ビル |
| 住所 | 大阪市北区東天満1-1-19 |
| 最寄駅 | 東西線 『
大阪天満宮 』
5 分
谷町線 『 南森町 』 8 分 谷町線 『 天満橋 』 8 分 堺筋線-南森町駅-徒歩8分 |
| 構造 | S(鉄骨)造 10階建 |
| 築年数 | 1991/12 【新耐震基準】 |
| 設備
|
|
営業マンの一言 電算センターやセキュリティ面を重視せれる会社には、お勧めです。大通りに面した大型オフィス11階にセキュリティゲート(受付あり。アンチバスバック方式導入済み) 大阪メトロ谷町線 南森町駅 東西線 大阪天満宮駅徒歩圏内 大通り沿いに面した視認性の高い賃貸テナントビル セキュリティゲート・非常用発電・リフレッシュルーム有り |
|
| 備考 | リフレッシュルーム |

※取引態様:仲介
※上記、金額は募集条件です。 条件交渉など、詳細についてはお問合せ下さい。
※広告作成中に契約済みの場合はご容赦下さい。
※図面等現況が相違する場合は現況優先にてご容赦下さい。

























