森川ビル

森川ビル 貸室情報
| 種別 | 事務所 |
|---|---|
| 物件名 | 森川ビル |
| 住所 | 大阪市北区中津1-11-8 |
| 最寄駅 | 御堂筋線 『
中津 』
1 分
御堂筋線 『 梅田 』 10 分 |
| 構造 | 鉄骨鉄筋コンクリート造 9階建 |
| 築年数 | 1986/3 【新耐震基準】 |
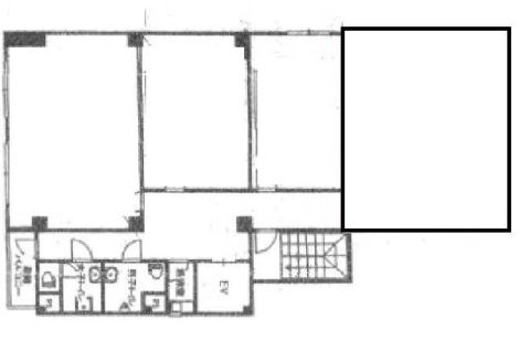
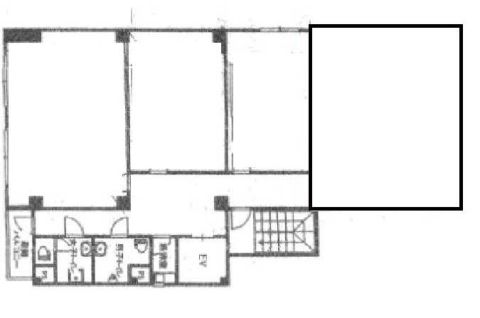
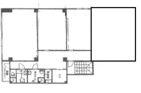
| 設備
|
|
営業マンの一言 事務所・SOHOタイプ、長期、短期貸もご相談ください。 |
|

※取引態様:仲介
※上記、金額は募集条件です。 条件交渉など、詳細についてはお問合せ下さい。
※広告作成中に契約済みの場合はご容赦下さい。
※図面等現況が相違する場合は現況優先にてご容赦下さい。
森川ビルの所在地周辺
物件を再検索する
近隣のよく似た坪数の貸事務所
-
サン・オークスビル
大阪市北区豊崎2
御堂筋線「中津」徒歩5分
16.3坪 -
セレコート中津ビル(旧、西部ビル)
大阪市北区豊崎2
御堂筋線「中津」徒歩5分
16.2坪 -
TOビル
大阪市北区豊崎3
御堂筋線「中津」徒歩3分
18.0坪 -
エイトビル
大阪市北区豊崎3
御堂筋線「中津」徒歩3分
16.7坪 -
ローツェⅡ
大阪市北区豊崎3
御堂筋線「中津」徒歩3分
16.29坪 -
三栄ビル(北区豊崎)
大阪市北区豊崎3
御堂筋線「中津」徒歩1分
15.1坪 -
大明ビル(ダイメイ)
大阪市北区豊崎3
御堂筋線「中津」徒歩1分
15.21坪 -
オムシスビル
大阪市北区豊崎7
御堂筋線「中津」徒歩2分
18.15坪 -
桜井産商ビル
大阪市北区中津1
御堂筋線「中津」徒歩1分
15.0坪 -
第二東洋ビル
大阪市北区中津1
御堂筋線「中津」徒歩2分
17.79坪





中阪 浩之













