四本ビル(ヨツモト)

四本ビル(ヨツモト) 貸室情報
| 種別 | 貸事務所 |
|---|---|
| 物件名 | 四本ビル(ヨツモト) |
| 住所 | 大阪市北区本庄東1-22-3 |
| 最寄駅 | 堺筋線 『 天神橋六丁目 』 4 分 |
| 構造 | 鉄骨鉄筋コンクリート造 10階建 |
| 築年数 | 1975/1 (リニューアル: 2003/11 ) |
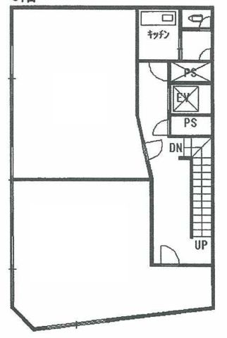
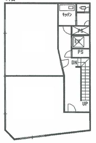
| 設備
|
|
営業マンの一言 堺筋線 天神橋六丁目駅徒歩4分の好立地。採光良です。 |
|

※取引態様:仲介
※上記、金額は募集条件です。 条件交渉など、詳細についてはお問合せ下さい。
※広告作成中に契約済みの場合はご容赦下さい。
※図面等現況が相違する場合は現況優先にてご容赦下さい。
四本ビル(ヨツモト)の所在地周辺
物件を再検索する
近隣のよく似た坪数の貸事務所
-
エレガントビル大阪
大阪市北区天神橋6
堺筋線「天神橋六丁目」徒歩2分
22.4坪 -
河崎ビル
大阪市北区天神橋7
堺筋線「天神橋六丁目」徒歩2分
24.0坪 -
OMビル
大阪市北区浪花町
堺筋線「天神橋六丁目」徒歩1分
20.06坪 -
テンロクビルヂング
大阪市北区長柄中1
堺筋線「天神橋六丁目」徒歩4分
23.2坪 -
RISE88ビル(ライズ)
大阪市北区本庄東1
堺筋線「天神橋六丁目」徒歩1分
21.57坪






堀中 忠久








