JUST本町ビル

堀中 忠久ホリナカ タダヒサ
「Just本町ビル」は、大阪市中央区安土町3丁目にございます、賃貸事務所・テナントビル。
1・2階にドトールコーヒーの入居する、7階建ての角ビル。
特徴的なアーチ型の外観と、ホテルヴィアーレ大阪の南向かいという立地から、視認性の高い建物です。
大阪市営地下鉄・御堂筋線の「本町駅」1番出入口を上がって、東にまっすぐ約150m・徒歩2分。
中央線や堺筋線の「堺筋本町駅」からも徒歩3分と、3WAYアクセスが可能な抜群のフットワーク拠点。
周辺には、国際ビルやセントレジスホテル大阪の入る本町ガーデンシティなどがあり、まさに大阪のビジネス中心地です。
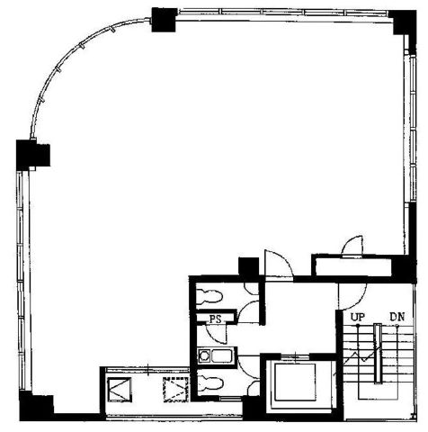
貸室は、独立性が確保される約32坪のワンフロア貸し。
但し、EVホールやトイレ、給湯室も含んだ広さです。
実質のワークスペースは約27坪になりますので、ご注意ください。
JUST本町ビル 貸室情報
| 種別 | 店舗・事務所 |
|---|---|
| 物件名 | JUST本町ビル |
| 住所 | 大阪市中央区安土町3-2-4 |
| 最寄駅 | 御堂筋線 『
本町 』
2 分
堺筋線 『 堺筋本町 』 3 分 中央線 『 本町 』 4 分 |
| 構造 | S(鉄骨)造 7階建 |
| 築年数 | 1991/1 【新耐震基準】 |
| 設備
|
|
営業マンの一言 本貸室面積にはEVホール・トイレ・給湯スペース約3.62坪を含みます(専有貸室面積:約27.20坪)大阪ビジネスエリア中心地の貸事務所。 |
|

※取引態様:仲介
※上記、金額は募集条件です。 条件交渉など、詳細についてはお問合せ下さい。
※広告作成中に契約済みの場合はご容赦下さい。
※図面等現況が相違する場合は現況優先にてご容赦下さい。
JUST本町ビルの所在地周辺
物件を再検索する
近隣のよく似た坪数の貸事務所
-
オリックス本町ビル
大阪市西区西本町1
御堂筋線「本町」徒歩3分
39.39坪 -
マツダビル
大阪市中央区安土町3
御堂筋線「本町」徒歩1分
36.03坪 -
TAIRINビル
大阪市中央区淡路町4
御堂筋線「本町」徒歩3分
36.73坪 -
瓦町昭和ビル
大阪市中央区瓦町3
御堂筋線「本町」徒歩3分
35.93坪 -
ステーツ本町
大阪市中央区瓦町3
御堂筋線「本町」徒歩3分
30.83坪 -
おおきにKOKODESU瓦町四丁目
大阪市中央区瓦町4
御堂筋線「本町」徒歩4分
36.74坪 -
本町プレタビル
大阪市中央区瓦町4
御堂筋線「本町」徒歩4分
32.14坪 -
エス・ピー・アイス本町ビル
大阪市中央区北久宝寺町4
御堂筋線「本町」徒歩3分
31.5坪 -
VPO本町セントラル
大阪市中央区北久宝寺町4
御堂筋線「本町」徒歩3分
32.56坪 -
南本町エクセルビル
大阪市中央区久太郎町3
御堂筋線「本町」徒歩3分
34.48坪

























