内本町第10松屋ビル

中阪 浩之ナカサカ ヒロユキ
「内本町松屋ビル10」は、大阪市中央区内本町2丁目にございます、賃貸事務所ビルです。
本町通りに面した地上12階建て。
落ち着きのあるダークブラウンの角ビル。
1階には郵便局もあり、視認性の高い建物です。
築後30年になりますが、日々の管理がしっかりしており、日中は管理人さんもおられる安心・安全オフィス。またオーナー様は、大阪市内に数十棟のオフィスビルを所有されています。
個別空調、エレベーター2基、機械警備、駐車場と、ビル設備も充実しており、快適なオフィス空間が提供されています。
貸室は、最小約5坪のコンパクトなお部屋から、約30坪まで豊富な坪数がございます。
賃貸諸条件も交渉が可能です。是非、お問合せくださいませ。
交通アクセスは、大阪市営地下鉄・谷町線・中央線の「谷町四丁目駅」より徒歩4分。
堺筋線・中央線の「堺筋本町駅」からも徒歩約7分。
マイドーム大阪や大阪商工会議所、中央区役所も徒歩圏内。フットワークの良いビジネス拠点です。
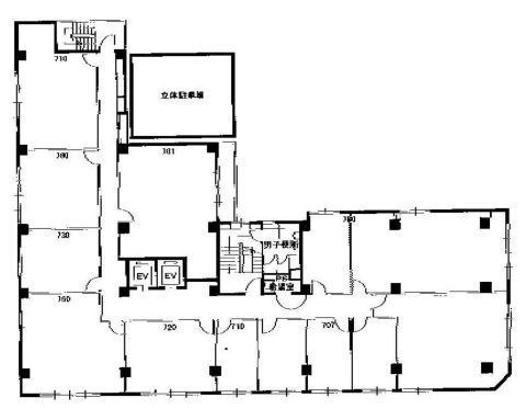
内本町第10松屋ビル 貸室情報
| 階 | 号室 | 坪数 | ㎡数 | 賃料 | 共益費 | 保証金 | |
|---|---|---|---|---|---|---|---|
| 4階 | 401(403) | 29.15坪 | 96.37㎡ | お電話・メールにて お問い合わせください。 | ![]() |
||
| 5階 | 501 | 29.15坪 | 96.37㎡ | お電話・メールにて お問い合わせください。 | ![]() |
||
| 種別 | 貸事務所 |
|---|---|
| 物件名 | 内本町第10松屋ビル |
| 住所 | 大阪市中央区内本町2-1-19 |
| 最寄駅 | 谷町線 『
谷町四丁目 』
4 分
中央線 『 谷町四丁目 』 6 分 |
| 構造 | 鉄筋コンクリート造 12階建 |
| 築年数 | 1984/9 【新耐震基準】 |
| 設備
|
|
営業マンの一言 1階に郵便局があり、便利なオフィスです。本町通りに面した独立開業見向きコンパクトオフィス~30坪の貸事務所!初期費用&賃料も大幅条件相談可 |
|
| 備考 | リフレッシュルーム |

※取引態様:仲介
※上記、金額は募集条件です。 条件交渉など、詳細についてはお問合せ下さい。
※広告作成中に契約済みの場合はご容赦下さい。
※図面等現況が相違する場合は現況優先にてご容赦下さい。
内本町第10松屋ビルの所在地周辺
物件を再検索する
近隣のよく似た坪数の貸事務所
-
本町カノヤビル
大阪市中央区内本町1
谷町線「谷町四丁目」徒歩1分
15.0坪 -
内本町B&Mビル
大阪市中央区内本町1
谷町線「谷町四丁目」徒歩1分
17.08坪 -
五苑第二ビル
大阪市中央区内本町1
谷町線「谷町四丁目」徒歩1分
15.0坪 -
寿ビル
大阪市中央区内本町1
谷町線「谷町四丁目」徒歩2分
18.0坪 -
ストークNEビル
大阪市中央区内本町2
谷町線「谷町四丁目」徒歩6分
18.24坪 -
レイズ大手前ビル
大阪市中央区北新町
谷町線「谷町四丁目」徒歩3分
15.02坪 -
エフクレスト
大阪市中央区谷町4
谷町線「谷町四丁目」徒歩1分
18.9坪 -
谷町細見ビル
大阪市中央区常盤町1
谷町線「谷町四丁目」徒歩1分
16.76坪 -
GARNET BLDG.OSAKA
大阪市中央区農人橋2
谷町線「谷町四丁目」徒歩3分
19.84坪 -
谷町八木ビル
大阪市中央区農人橋2
谷町線「谷町四丁目」徒歩4分
16.0坪

























