大橋北浜ビル

大橋北浜ビル 貸室情報
| 種別 | 貸事務所 |
|---|---|
| 物件名 | 大橋北浜ビル |
| 住所 | 大阪市中央区北浜1-2-4 |
| 最寄駅 | 御堂筋線 『
淀屋橋 』
8 分
堺筋線 『 北浜 』 2 分 京阪中之島線 『 なにわ橋 』 5 分 |
| 構造 | 鉄骨鉄筋コンクリート造 9階建 /地下 1 階 |
| 築年数 | 1989/1 【新耐震基準】 |
| 設備
|
|
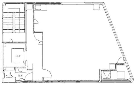
営業マンの一言 人気の北浜エリア。駅徒歩2分の好立地。ワンフロアワンテナントで眺望も良。 |
|

※取引態様:仲介
※上記、金額は募集条件です。 条件交渉など、詳細についてはお問合せ下さい。
※広告作成中に契約済みの場合はご容赦下さい。
※図面等現況が相違する場合は現況優先にてご容赦下さい。
大橋北浜ビルの所在地周辺
物件を再検索する
近隣のよく似た坪数の貸事務所
-
角屋堂島パークビル
大阪市北区堂島浜1
御堂筋線「淀屋橋」徒歩5分
21.92坪 -
堂浜第Ⅱビル【堂島第2ビル】
大阪市北区堂島浜1
御堂筋線「淀屋橋」徒歩7分
23.9坪 -
堂島ビルヂング
大阪市北区西天満2
御堂筋線「淀屋橋」徒歩5分
23.04坪 -
klimt BLD
大阪市北区西天満2
御堂筋線「淀屋橋」徒歩5分
20.78坪 -
北ビル3号館
大阪市北区西天満2
御堂筋線「淀屋橋」徒歩7分
24.2坪 -
Y’s淡路町ビル
大阪市中央区淡路町2
御堂筋線「淀屋橋」徒歩6分
20.01坪 -
高麗橋ビル(高麗橋4丁目)
大阪市中央区高麗橋4
御堂筋線「淀屋橋」徒歩2分
22.43坪 -
淀屋橋ダイビル
大阪市中央区高麗橋4
御堂筋線「淀屋橋」徒歩2分
22.9坪 -
パークコート淀屋橋ビル
大阪市中央区高麗橋4
御堂筋線「淀屋橋」徒歩4分
21.47坪 -
プロスパー平野町ビル
大阪市中央区平野町3
御堂筋線「淀屋橋」徒歩5分
23.79坪







中阪 浩之













