入商八木ビル

入商八木ビル 貸室情報
| 階 | 号室 | 坪数 | ㎡数 | 賃料 | 共益費 | 保証金 | |
|---|---|---|---|---|---|---|---|
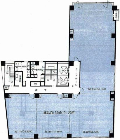
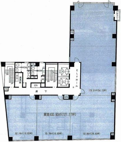
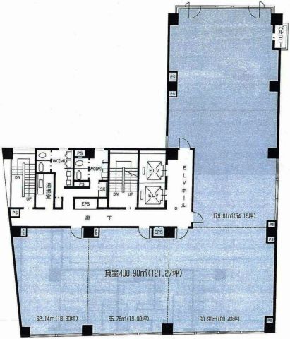
| 5階 | フロア | 121.27坪 | 400.90㎡ | お電話・メールにて お問い合わせください。 | ![]() |
||
| 6階 | 18.8坪 | 62.15㎡ | お電話・メールにて お問い合わせください。 | ![]() |
|||
| 8階 | 54.15坪 | 179.01㎡ | お電話・メールにて お問い合わせください。 | ![]() |
|||
| 種別 | 貸事務所 |
|---|---|
| 物件名 | 入商八木ビル |
| 住所 | 大阪市中央区北浜2-3-9 |
| 最寄駅 | 堺筋線 『
北浜 』
1 分
御堂筋線 『 淀屋橋 』 6 分 京阪本線 『 北浜 』 1 分 |
| 構造 | 鉄骨鉄筋コンクリート造 10階建 /地下 1 階 |
| 築年数 | 1990/1 【新耐震基準】 |
| 設備
|
|
営業マンの一言 北浜駅徒歩10秒!閑静な立地!! |
|

※取引態様:仲介
※上記、金額は募集条件です。 条件交渉など、詳細についてはお問合せ下さい。
※広告作成中に契約済みの場合はご容赦下さい。
※図面等現況が相違する場合は現況優先にてご容赦下さい。
入商八木ビルの所在地周辺
物件を再検索する
近隣のよく似た坪数の貸事務所
-
トレードピア淀屋橋ビル
大阪市中央区今橋2
堺筋線「北浜」徒歩2分
77.79坪 -
小寺プラザビル
大阪市中央区北浜2
堺筋線「北浜」徒歩1分
76.66坪 -
三井住友銀行高麗橋ビル
大阪市中央区伏見町2
堺筋線「北浜」徒歩1分
70.56坪







中阪 浩之






