本町イシカワビル

中阪 浩之ナカサカ ヒロユキ
「本町イシカワビル」は、大阪市中央区久太郎町4丁目にございます、賃貸事務所ビル。
大阪市営地下鉄・御堂筋線・中央線・四つ橋線の「本町駅」より徒歩3分と、3WAYアクセスが可能な交通至便。
阪神高速入口も近く、ビルに駐車場もございますので、営業車をご使用の企業様におすすめの賃貸オフィス。
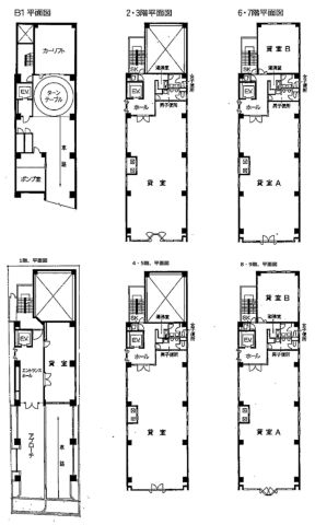
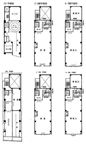
基準階面積は約50坪、20坪位に分割したフロアもございます。
周辺との調和を考えての落ち着いた外観。
個別空調、機械警備、男女別シャワートイレと、ビルスペックも充実の安心・快適なオフィス空間が提供されています。
大阪ビジネスの中心地“本町”は、地理的にも大阪の中心に位置しており、北の梅田、南のナンバ、ともに地下鉄で2駅とフットワークの良いビジネス拠点。
一方、「本町イシカワビル」の近隣には、通称“ざまさん”で親しまれている坐摩(イカスリ)神社や南御堂さんがあり、緑の多い落ち着いたロケーションです。
本町イシカワビル 貸室情報
| 種別 | 事務所 |
|---|---|
| 物件名 | 本町イシカワビル |
| 住所 | 大阪市中央区久太郎町4-2-1 |
| 最寄駅 | 御堂筋線 『
本町 』
3 分
四ツ橋線 『 本町 』 3 分 中央線 『 本町 』 2 分 |
| 構造 | 鉄骨鉄筋コンクリート造 9階建 /地下 1 階 |
| 築年数 | 1989/1 【新耐震基準】 |
| 設備
|
|
営業マンの一言 大幅に諸条件交渉できます。ぜひ、お問合せくださいませ。大阪メトロ御堂筋線 「本町」駅徒歩3分 四ツ橋線本町・中央線本町駅利用可能 ワンフロアワンテナント 賃貸テナントオフィスビルです。 |
|

※取引態様:仲介
※上記、金額は募集条件です。 条件交渉など、詳細についてはお問合せ下さい。
※広告作成中に契約済みの場合はご容赦下さい。
※図面等現況が相違する場合は現況優先にてご容赦下さい。
本町イシカワビルの所在地周辺
物件を再検索する
近隣のよく似た坪数の貸事務所
-
本町吉田ビル
大阪市西区阿波座1
御堂筋線「本町」徒歩2分
25.47坪 -
IENTO本町ビル(イエント本町)
大阪市中央区本町4
御堂筋線「本町」徒歩1分
29.29坪 -
中外ビル
大阪市中央区安土町3
御堂筋線「本町」徒歩1分
26.4坪 -
創建御堂筋ビル
大阪市中央区淡路町3
御堂筋線「本町」徒歩3分
28.43坪 -
瓦町スクエアビル
大阪市中央区瓦町2
御堂筋線「本町」徒歩6分
25.35坪 -
おおきにKOKODESU瓦町四丁目
大阪市中央区瓦町4
御堂筋線「本町」徒歩4分
28.13坪 -
南星瓦町ビル
大阪市中央区瓦町4
御堂筋線「本町」徒歩4分
27.56坪 -
本町コラボビル
大阪市中央区北久宝寺町4
御堂筋線「本町」徒歩3分
29.62坪 -
南本町エクセルビル
大阪市中央区久太郎町3
御堂筋線「本町」徒歩3分
26.94坪 -
オリックス久太郎町ビル(ORIX久太郎町ビル)
大阪市中央区久太郎町3
御堂筋線「本町」徒歩3分
26.88坪






























