大拓ビル20

| 種別 | 貸事務所 |
|---|---|
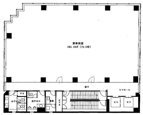
| 物件名 | 大拓ビル20 |
| 住所 | 大阪市中央区谷町3-6-4 |
| 最寄駅 | 谷町線 『
谷町四丁目 』
1 分
中央線 『 谷町四丁目 』 1 分 |
| 構造 | 鉄骨鉄筋コンクリート造 9階建 /地下 2 階 |
| 築年数 | 1990/8 【新耐震基準】 |
| 設備
|
|
営業マンの一言 谷町筋面すハイグレードオフィスビル |
|

※取引態様:仲介
※上記、金額は募集条件です。 条件交渉など、詳細についてはお問合せ下さい。
※広告作成中に契約済みの場合はご容赦下さい。
※図面等現況が相違する場合は現況優先にてご容赦下さい。
大拓ビル20の所在地周辺
物件を再検索する
近隣のよく似た坪数の貸事務所
-
船岡ビル
大阪市中央区常盤町1
谷町線「谷町四丁目」徒歩2分
60.0坪




中阪 浩之



