谷町アークビル

中阪 浩之ナカサカ ヒロユキ
「谷町アークビル」は谷町筋に面した賃貸オフィスビル。
地下鉄谷町線・中央線の「谷町四丁目駅」から近く、ガラスウォールの外観が美しい建物です。
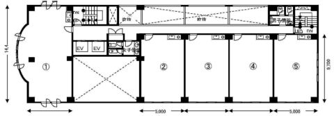
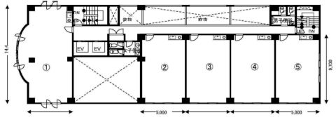
約15坪位の広さの貸室が中心ですので、小規模の企業様向けに適しています。
また、室内に水場がありますので、茶器の片づけなどに、部屋から出なくても良いのは便利です。
谷町4丁目界隈は、中央大通りより南側は比較的居住用の建物が多く、公園など緑も多いので静かな環境といえます。
一方、北側には大きなオフィスビルが建ち並びビジネスの活気があふれています。
その一角にある“NKH大阪放送局・BKプラザ”、視聴者とのふれあいスペースとして無料開放されています。
隣にある個性的な建物“大阪歴史博物館”の地下には、難波宮遺構が保存されており、こちらも見学が可能です。
屋外展示には“高床式倉庫”もあり、まさに歴史好きにはたまらないゾーンです。
谷町アークビル 貸室情報
| 種別 | 貸事務所 |
|---|---|
| 物件名 | 谷町アークビル |
| 住所 | 大阪市中央区谷町4-5-9 |
| 最寄駅 | 谷町線 『
谷町四丁目 』
1 分
中央線 『 谷町四丁目 』 1 分 |
| 構造 | S(鉄骨)造 11階建 |
| 築年数 | 1990/3 【新耐震基準】 |
| 設備
|
|
営業マンの一言 大阪メトロ谷町線 谷町四丁目駅近く、谷町筋面しガラスウォールの外観、視認性の在る綺麗なオフィスビル! |
|

※取引態様:仲介
※上記、金額は募集条件です。 条件交渉など、詳細についてはお問合せ下さい。
※広告作成中に契約済みの場合はご容赦下さい。
※図面等現況が相違する場合は現況優先にてご容赦下さい。
谷町アークビルの所在地周辺
物件を再検索する
近隣のよく似た坪数の貸事務所
-
ビクトワーレ
大阪市中央区糸屋町1
谷町線「谷町四丁目」徒歩5分
11.43坪 -
プラスサンビル
大阪市中央区内本町1
谷町線「谷町四丁目」徒歩1分
10.5坪 -
五苑第二ビル
大阪市中央区内本町1
谷町線「谷町四丁目」徒歩1分
15.0坪 -
有恒ビル(ユウコウ)
大阪市中央区内本町1
谷町線「谷町四丁目」徒歩2分
10.98坪 -
寿ビル
大阪市中央区内本町1
谷町線「谷町四丁目」徒歩2分
11.0坪 -
内本町中央ビル
大阪市中央区内本町1
谷町線「谷町四丁目」徒歩2分
13.42坪 -
オキツモビル大手前
大阪市中央区大手通1
谷町線「谷町四丁目」徒歩6分
11.06坪 -
フォレストパーク北新町
大阪市中央区北新町
谷町線「谷町四丁目」徒歩5分
14.11坪 -
第二太田ビル
大阪市中央区北新町
谷町線「谷町四丁目」徒歩3分
14.0坪 -
ピジョンビル
大阪市中央区谷町2
谷町線「谷町四丁目」徒歩2分
12.68坪
























