オーク堺筋本町ビル

営業スタッフ紹介
中阪 浩之ナカサカ ヒロユキ
オーク堺筋本町ビルの豆知識
「オーク堺筋本町ビル」は、大阪市中央区本町1丁目にございます、大型の賃貸事務所ビルです。
本町通りと堺筋の北東角地に建つ建物。
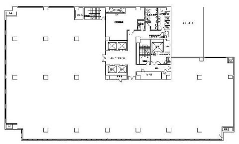
地上10階建てと高さはございませんが、基準階面積が約350坪強あり、どっしりとした構えが印象的なオフィスビル。
1982年築で、2006年には耐震補強の改修・リニューアルも終え、安心・快適なオフィス空間を提供しています。
交通アクセスは、大阪市営地下鉄・堺筋線・中央線の「堺筋本町駅」13番出入口を上がってスグの好ロケーション。
大阪の大動脈“御堂筋線”の本町駅からも、徒歩約6分。
フットワークの良いビジネス拠点です。
エレベーターは17人乗りが4基と33人乗りが1基ございますので、朝・昼・夕方の混雑時でもストレスなく過ごせそうです。
貸室は、個別空調・フリーアクセスフロアで、約100坪~分割対応も可能。
堺筋本町は、本町・北浜にとともに大阪ビジネスの中心地として、多くの企業が集まっています。また、マイドームおおさかや、大阪商工会議所、中央区役所などもあり、サポート体制も整ったエリアです。
オーク堺筋本町ビル 貸室情報
| 種別 | 貸事務所 |
|---|---|
| 物件名 | オーク堺筋本町ビル |
| 住所 | 大阪市中央区本町1-8-12 |
| 最寄駅 | 堺筋線 『
堺筋本町 』
0 分
中央線 『 堺筋本町 』 2 分 御堂筋線 『 本町 』 6 分 |
| 構造 | 鉄骨鉄筋コンクリート造 10階建 /地下 2 階 |
| 築年数 | 1982/9 (リニューアル: 2006 ) |
| 設備
|
|
営業マンの一言 堺筋本町駅真上に大型賃貸事務所ビルです。堺筋本町駅真上の大型物件 堺筋本町駅前、本町通りと堺筋の交差点・角地に立つ大型賃貸事務所ビルです。 |
|
| 備考 | 免震・耐震補強/リフレッシュルーム |

※取引態様:仲介
※上記、金額は募集条件です。 条件交渉など、詳細についてはお問合せ下さい。
※広告作成中に契約済みの場合はご容赦下さい。
※図面等現況が相違する場合は現況優先にてご容赦下さい。






















