SD本町ビル

中阪 浩之ナカサカ ヒロユキ
「SD本町ビル」は、大阪市中央区本町4丁目にございます、賃貸事務所ビル。
本町通りに面した、10階建て角ビル。
中央区と西区の境界・高速道路の手前に位置し、1階にはカレー屋さん、道路向かいにはアパホテルと、視認性は抜群です。
2016年春にリニューアル!
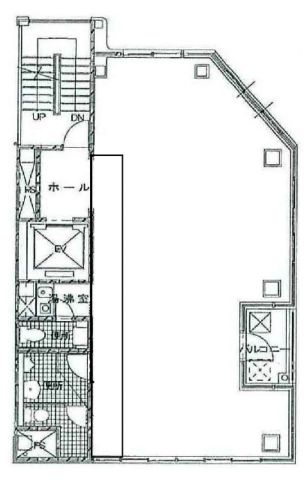
改装前は、広さ約20坪のワンフロア貸しでしたが、共用廊下を設け、約6坪と16坪のお部屋にわけました。
各室ともに採光・眺望が良く、快適なオフィススペースが確保されています。
ビジネス街中心部でコンパクトな広さ、かつ明るい貸室は希少物件。
ご内覧頂ければ、ご納得いただけるハズです。
大阪市営地下鉄・御堂筋線の「本町駅」8番出入口を上がって、スターバックスコーヒーを西へまっすぐ200m。
中央線や四つ橋線も利用可能な、フットワークの良いビジネス拠点です。
SD本町ビル 貸室情報
| 階 | 号室 | 坪数 | ㎡数 | 賃料 | 共益費 | 保証金 | |
|---|---|---|---|---|---|---|---|
| 7階 | 1 | 10.58坪 | 34.98㎡ | 100,510 円 | 26,450 円 | 8ヶ月 | ![]() |
| 7階 | 1 | 10.58坪 | 34.98㎡ | 116,380 円 | 26,450 円 | 8ヶ月 | ![]() |
| 種別 | 事務所・店舗 |
|---|---|
| 物件名 | SD本町ビル |
| 住所 | 大阪市中央区本町4-8-1 |
| 最寄駅 | 御堂筋線 『
本町 』
2 分
四ツ橋線 『 本町 』 2 分 中央線 『 本町 』 4 分 |
| 構造 | 鉄筋コンクリート造 10階建 /地下 1 階 |
| 築年数 | 1989/1 【新耐震基準】 (リニューアル: 2016年3月 ) |
| 設備
|
|
営業マンの一言 2016年春リニューアル!御堂筋線本町駅2分の賃貸オフィス大阪・本町通りに面した角ビル、全室明るく綺麗な貸事務所ビルです。 |
|

※取引態様:仲介
※上記、金額は募集条件です。 条件交渉など、詳細についてはお問合せ下さい。
※広告作成中に契約済みの場合はご容赦下さい。
※図面等現況が相違する場合は現況優先にてご容赦下さい。
SD本町ビルの所在地周辺
物件を再検索する
近隣のよく似た坪数の貸事務所
-
創建御堂筋ビル
大阪市中央区淡路町3
御堂筋線「本町」徒歩3分
13.91坪 -
FOBOS ビル
大阪市中央区淡路町4
御堂筋線「本町」徒歩4分
10.67坪 -
瓦町ビル(旧:キューアス瓦町)
大阪市中央区瓦町3
御堂筋線「本町」徒歩5分
11.5坪 -
おおきに御堂筋瓦町ビル
大阪市中央区瓦町4
御堂筋線「本町」徒歩3分
14.81坪 -
瓦町浪速ビル
大阪市中央区瓦町4
御堂筋線「本町」徒歩3分
15.0坪 -
久宝ビル
大阪市中央区北久宝寺町4
御堂筋線「本町」徒歩3分
12.7坪 -
北久宝寺店舗
大阪市中央区北久宝寺町4
御堂筋線「本町」徒歩3分
10.98坪 -
本町アーバンライフ
大阪市中央区北久宝寺町4
御堂筋線「本町」徒歩4分
13.11坪 -
グランディール本町
大阪市中央区久太郎町3
御堂筋線「本町」徒歩5分
13.85坪 -
大阪センタービル
大阪市中央区久太郎町4
御堂筋線「本町」徒歩0分
13.37坪



























