タイムスビル

中阪 浩之ナカサカ ヒロユキ
「タイムスビル」は、大阪市中央区南新町1丁目にございます、賃貸事務所・テナントビル。
大阪市営地下鉄・谷町線・中央線の「谷町四丁目駅」より徒歩2分と、便利な交通アクセス。
ビル前の道路は歩道もあり、間口の広い南向きの建物ですので、貸室内の採光は抜群。
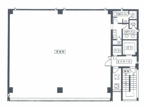
さらに、広さは約55坪と、ゆとりのワンフロア貸しです。
独立性の高いワンフロア・ワンテナントは、他の音モレ等の心配もないので、来店型オフィスに最適。
また、「タイムスビル」は広さもありますので、ショールーム兼オフィス使用にもオススメです。
駅からも近く、明るく、快適なビジネス空間は、企業のイメージアップにも役立ちます。
谷4周辺は、官公庁機関の多く集まるエリアです。
一方、大阪城公園をはじめとした緑豊かな環境から、居住用としても人気の街です。
タイムスビル 貸室情報
| 階 | 号室 | 坪数 | ㎡数 | 賃料 | 共益費 | 敷金 | |
|---|---|---|---|---|---|---|---|
| 5階 | フロア | 54.45坪 | 180.00㎡ | お電話・メールにて お問い合わせください。 | ![]() |
||
| 6階 | フロア | 54.56坪 | 180.37㎡ | お電話・メールにて お問い合わせください。 | ![]() |
||
| 種別 | 貸事務所 |
|---|---|
| 物件名 | タイムスビル |
| 住所 | 大阪市中央区南新町1-1-2 |
| 最寄駅 | 谷町線 『
谷町四丁目 』
3 分
中央線 『 谷町四丁目 』 3 分 |
| 構造 | 鉄骨鉄筋コンクリート造 9階建 /地下 1 階 |
| 築年数 | 1990/3 【新耐震基準】 |
| 設備
|
|
営業マンの一言 広い道路に面してますので室内採光良好です。谷町四丁目エリア、全室、南向きの明るいお部屋。 |
|

※取引態様:仲介
※上記、金額は募集条件です。 条件交渉など、詳細についてはお問合せ下さい。
※広告作成中に契約済みの場合はご容赦下さい。
※図面等現況が相違する場合は現況優先にてご容赦下さい。
タイムスビルの所在地周辺
物件を再検索する
近隣のよく似た坪数の貸事務所
-
フェニックス内本町ビル
大阪市中央区内本町2
谷町線「谷町四丁目」徒歩3分
44.67坪 -
サンシャイン大手前ビル
大阪市中央区谷町2
谷町線「谷町四丁目」徒歩1分
40.0坪 -
NS21ビル
大阪市中央区谷町3
谷町線「谷町四丁目」徒歩1分
49.2坪 -
FLAGSビル(フラッグスビル)
大阪市中央区谷町3
谷町線「谷町四丁目」徒歩1分
43.92坪 -
中央大通FNビル
大阪市中央区常盤町1
谷町線「谷町四丁目」徒歩1分
44.0坪 -
ブランクレール谷町
大阪市中央区常盤町2
谷町線「谷町四丁目」徒歩3分
40.11坪 -
大平第2ビル
大阪市中央区南新町2
谷町線「谷町四丁目」徒歩5分
50.0坪















