JRE堺筋本町ビル

営業スタッフ紹介
中阪 浩之ナカサカ ヒロユキ
JRE堺筋本町ビルの豆知識
「堺筋本町ビル」は、大阪市中央区南本町1丁目にございます、賃貸事務所ビル。
堺筋沿い、中央大通りと本町通りの中間点に建つ、正面エントランスが特徴的なランドマークオフィス。
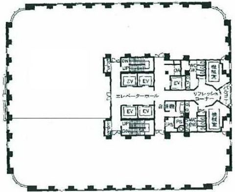
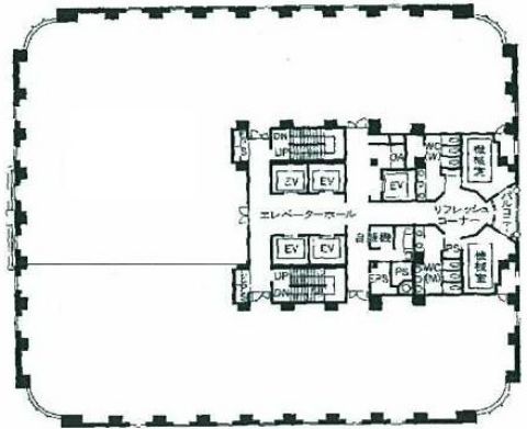
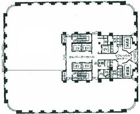
エントランスだけではなく、貸室内のコーナーや、リフレッシュコーナー、エレベーターホルの天井など、随所にアーチ型や曲線を取り入れた、ゆとりある・上品な美しさが印象的です。
大阪市営地下鉄・堺筋線・中央線の「堺筋本町駅」より徒歩1分と、交通アクセスも抜群のロケーション。
基準階面積は、約285坪。
約50坪の広さからの分割相談も可能です。
エレベーター5基(非常用含む)、機械警備、男女別シャワートイレ、リフレッシュルーム、大型車も可能な駐車場の併設と、ビルスペックも充実しており、快適なビジネスライフが約束されています。
OAフロアを10cmに、天井の高さは2.65mを確保され、ゆとりのオフィス空間。
大阪のメインストリート“御堂筋”へも徒歩可能と、大阪市内だけでなく近郊都市へのアクセスも良好。
ビジネス拠点として、最高クラスの環境が整っています。
JRE堺筋本町ビル 貸室情報
| 階 | 号室 | 坪数 | ㎡数 | 賃料 | 共益費 | 敷金 | |
|---|---|---|---|---|---|---|---|
| 6階 | 90.47坪 | 299.08㎡ | お電話・メールにて お問い合わせください。 | ![]() |
|||
| 13階 | 284.18坪 | 939.44㎡ | お電話・メールにて お問い合わせください。 | ![]() |
|||
| 種別 | 貸事務所 |
|---|---|
| 物件名 | JRE堺筋本町ビル |
| 住所 | 大阪市中央区南本町1-8-14 |
| 最寄駅 | 堺筋線 『
堺筋本町 』
1 分
御堂筋線 『 本町 』 5 分 中央線 『 堺筋本町 』 1 分 |
| 構造 | 鉄骨鉄筋コンクリート造 13階建 /地下 2 階 |
| 築年数 | 1992/11 【新耐震基準】 |
| 設備
|
|
営業マンの一言 「堺筋本町」駅徒歩1分の好立地!只今、魅力的なキャンペーン中に付、是非お問合せ下さい。堺筋本町、ハイグレード、インテリジェンスオフィス! 大阪メトロ堺筋線「堺筋本町」駅徒歩1分 御堂筋本町駅・中央線本町駅徒歩利用可能 至近の大型ハイグレードオフィスビル、個性的な外観が印象的です。 |
|
| 備考 | リフレッシュルーム |

※取引態様:仲介
※上記、金額は募集条件です。 条件交渉など、詳細についてはお問合せ下さい。
※広告作成中に契約済みの場合はご容赦下さい。
※図面等現況が相違する場合は現況優先にてご容赦下さい。



























