心斎橋EPビル

丹羽 美智子ニワミチコ
「心斎橋EPビル」は、大阪市中央区南船場2丁目にございます、賃貸事務所ビル。
大阪市営地下鉄・堺筋線・長堀鶴見緑地線の「長堀橋駅」より徒歩2分、大阪の大動脈である御堂筋線の「心斎橋駅」からも徒歩5分の好アクセス。
ビルに駐車場の併設はございませんが、近隣にある駐車場をご紹介できます。
白色の清潔感あふれる外観。
9階建てでワンフロア50坪弱の建物ですが、エレベーターが2基あり、グレードも良く、何より賃貸条件が、人気の南船場では№1におすすめ。
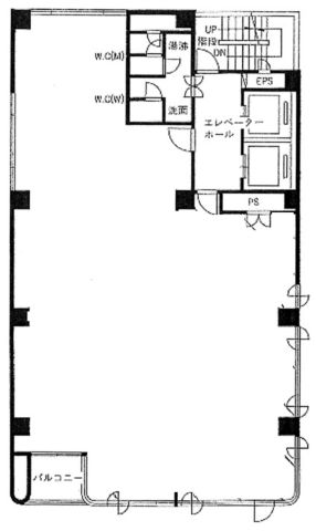
使いやすい面積(10坪~20坪台)に分割したフロアもございますので、ご希望の広さを是非ご相談ください。
広さがご希望より少し広めでも、条件面でクリアできるかも?!の賃貸オフィスです。
「心斎橋EPビル」のある南船場・心斎橋界隈は、東急ハンズや百貨店、ユニクロ、H&Mなどの大型商業施設やシャネルやヴィトンなどの高級ブランドショップ、また大阪らしい個性的でリーズナブルな心斎橋筋商店など、常に多くの人々で賑わう活気ある街並みが、貴社のビジネス拠点に大きなパワーとなること間違いナシです。
心斎橋EPビル 貸室情報
| 種別 | 事務所 |
|---|---|
| 物件名 | 心斎橋EPビル |
| 住所 | 大阪市中央区南船場2-7-11 |
| 最寄駅 | 堺筋線 『
長堀橋 』
2 分
御堂筋線 『 心斎橋 』 5 分 御堂筋線 『 本町 』 8 分 |
| 構造 | 鉄筋コンクリート造 9階建 |
| 築年数 | 1986/1 【新耐震基準】 |
| 設備
|
|
営業マンの一言 南船場・心斎橋エリアのコストパフォーマンスの高い賃貸事務所ビル。条件変更しました!! 大阪メトロ御堂筋線 心斎橋駅徒歩5分 長堀橋駅も利用可能 心斎橋駅エリアビルグレードも良く、貸主が良い方で人気が有る貸事務所!お勧めです!! |
|

※取引態様:仲介
※上記、金額は募集条件です。 条件交渉など、詳細についてはお問合せ下さい。
※広告作成中に契約済みの場合はご容赦下さい。
※図面等現況が相違する場合は現況優先にてご容赦下さい。
心斎橋EPビルの所在地周辺
物件を再検索する
近隣のよく似た坪数の貸事務所
-
堺筋トラストビル
大阪市中央区博労町1
堺筋線「長堀橋」徒歩3分
15.5坪 -
堺筋MS第2ビル
大阪市中央区博労町1
堺筋線「長堀橋」徒歩4分
15.19坪 -
タイケンビル
大阪市中央区博労町2
堺筋線「長堀橋」徒歩5分
17.96坪 -
中博ビル(ナカヒロ)
大阪市中央区博労町2
堺筋線「長堀橋」徒歩5分
15.38坪 -
東邦ビル(旧:大バスビル)
大阪市中央区博労町2
堺筋線「長堀橋」徒歩6分
19.96坪 -
堺筋ビルディング
大阪市中央区島之内1
堺筋線「長堀橋」徒歩1分
15.49坪 -
第一住建東心斎橋ビル
大阪市中央区東心斎橋1
堺筋線「長堀橋」徒歩1分
18.34坪 -
日亜ビル
大阪市中央区東心斎橋2
堺筋線「長堀橋」徒歩2分
16.53坪 -
ミフネ東心斎橋
大阪市中央区東心斎橋2
堺筋線「長堀橋」徒歩4分
19.22坪 -
ワイケー南船場ビル(旧:ライト南船場)
大阪市中央区南船場1
堺筋線「長堀橋」徒歩3分
17.28坪






















