オーク心斎橋ビル

営業スタッフ紹介
中阪 浩之ナカサカ ヒロユキ
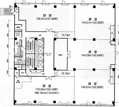
オーク心斎橋ビル 貸室情報
| 種別 | 貸事務所 |
|---|---|
| 物件名 | オーク心斎橋ビル |
| 住所 | 大阪市中央区南船場3-5-8 |
| 最寄駅 | 御堂筋線 『
心斎橋 』
2 分
四ツ橋線 『 四ツ橋 』 4 分 堺筋線 『 長堀橋 』 4 分 |
| 構造 | 鉄骨鉄筋コンクリート造 10階建 /地下 2 階 |
| 築年数 | 1971/1 (リニューアル: 1999/01 ) |
| 設備
|
|
営業マンの一言 至近製抜群!東急ハンズ西隣の大型、ハイスペックオフィスビル!御堂筋線 心斎橋駅徒歩2分 四ツ橋線、堺筋線も利用可能。東急ハンス、クリスタ長堀出入口に隣接。 |
|
| 備考 | 免震・耐震補強/リフレッシュルーム |

※取引態様:仲介
※上記、金額は募集条件です。 条件交渉など、詳細についてはお問合せ下さい。
※広告作成中に契約済みの場合はご容赦下さい。
※図面等現況が相違する場合は現況優先にてご容赦下さい。
オーク心斎橋ビルの所在地周辺
物件を再検索する
近隣のよく似た坪数の貸事務所
-
御堂筋グランタワービル
大阪市中央区博労町3
御堂筋線「心斎橋」徒歩4分
121.82坪 -
鶴の巣ビル
大阪市中央区東心斎橋1
御堂筋線「心斎橋」徒歩2分
112.24坪 -
THE PEAK SHINSAIBASHI(旧:出光ナガホリ)
大阪市中央区南船場3
御堂筋線「心斎橋」徒歩3分
111.97坪
























