千里朝日阪急ビル

千里朝日阪急ビル 貸室情報
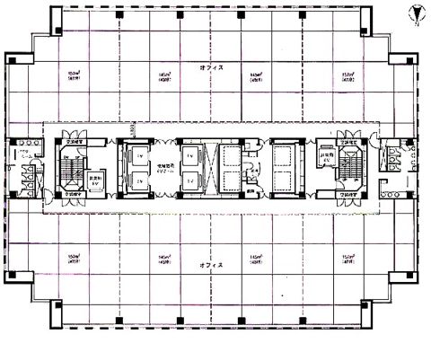
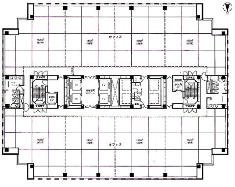
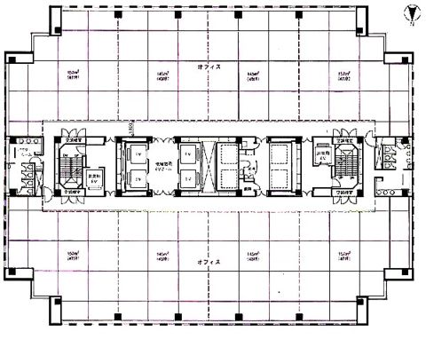
| 階 | 号室 | 坪数 | ㎡数 | 賃料 | 共益費 | 敷金 | |
|---|---|---|---|---|---|---|---|
| 8階 | 91.52坪 | 302.55㎡ | お電話・メールにて お問い合わせください。 | ![]() |
|||
| 9階 | 183.03坪 | 605.06㎡ | お電話・メールにて お問い合わせください。 | ![]() |
|||
| 15階 | 183.03坪 | 605.06㎡ | お電話・メールにて お問い合わせください。 | ![]() |
|||
| 15階 | 91.52坪 | 302.55㎡ | お電話・メールにて お問い合わせください。 | ![]() |
|||
| 種別 | 貸事務所 |
|---|---|
| 物件名 | 千里朝日阪急ビル |
| 住所 | 豊中市新千里東町1-5-3 |
| 最寄駅 | 北大阪急行 『 千里中央 』 2 分 |
| 構造 | 鉄骨鉄筋コンクリート造 22階建 /地下 2 階 |
| 築年数 | 1992/10 【新耐震基準】 |
| 設備
|
|
営業マンの一言 北大阪急行 千里中央駅徒歩2分の好立地 視認性の高い大型賃貸テナントビル |
|
| 備考 | 貸し会議室/日祝、来店可能サービス型オフィス |

※取引態様:仲介
※上記、金額は募集条件です。 条件交渉など、詳細についてはお問合せ下さい。
※広告作成中に契約済みの場合はご容赦下さい。
※図面等現況が相違する場合は現況優先にてご容赦下さい。
千里朝日阪急ビルの所在地周辺
物件を再検索する
近隣のよく似た坪数の貸事務所
-
箕面千里ビル
箕面市船場東3
北大阪急行「千里中央」徒歩15分
107.13坪







中阪 浩之




