ルグラン心斎橋 3階-No.10016
中阪 浩之ナカサカ ヒロユキ
ルグラン心斎橋の豆知識
「ルグラン心斎橋ビル」は、大阪市中央区南船場2丁目にございます、賃貸事務所ビルです。
東急ハンズ心斎橋店さんの東側、長堀通より少し北に入った三休橋筋面した、最高のロケーション。
1階には、あのブートキャンプで一世を風靡したビリー氏のスタジオ&ビリーホールが入居しており、視認性も抜群。
大阪市営地下鉄・御堂筋線の「心斎橋駅」より徒歩3分、堺筋線・長堀鶴見緑地線の「長堀駅」からは徒歩2分の交通アクセス。
長堀橋から四ツ橋までの東西を走る長堀通りの地下にはショッピングモール“クリスタ長堀”があり、雨の日のフットワークも安心です。
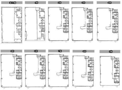
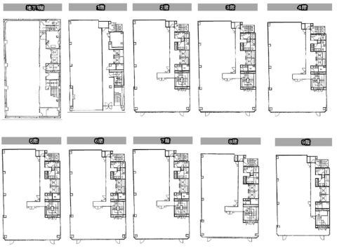
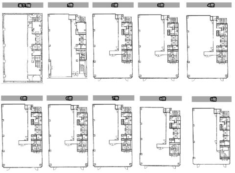
「ルグラン心斎橋ビル」は、基準階面積85坪の中型ビル。
10~20坪台の使いやすい広さに分割したフロアもございますので、是非お問合せください。
管理が良く、日々の清掃も丁寧にされており、快適なオフィス空間。
個別空調、機械警備、OAフロア、男女別シャワートイレと、ビルスペックも充実しています。
2015年春には、空調機のリニューアル工事も予定しております。
ルグラン心斎橋 基本情報
| 種別 | 貸事務所(物件番号:10016) |
|---|---|
| 物件名 | ルグラン心斎橋 |
| 住所 | 大阪市中央区南船場2-12-16 |
| 所在階 | 3階部分号室 |
| 契約面積 | 17.75 坪・ 58.68 ㎡ |
| 賃料 | 総額
230,750 円 (税抜)・坪単価
13,000 円/坪 (税抜) 総額 253,825 円(税含む) |
| 共益費 | 総額 賃料に含む (税抜)・坪単価 賃料に含む (税抜) 総額 賃料に含む (税含む) |
| 月額合計 | 総額 230,750 円(税抜)・坪単価 13,000 円(税抜) 総額 253,825 円 (税含む) |
| 保証金 | 12ヶ月 |
| 解約引 | 3年未満20%、3年以上、全額返金 |
| 最寄駅 |
堺筋線 『
長堀橋 』
2 分
御堂筋線 『 心斎橋 』 3 分 長堀鶴見緑地線 『 心斎橋 』 3 分 |
| 構造 | 鉄骨鉄筋コンクリート造 9階建 /地下 1 階 |
| 築年数 | 1990/1 【新耐震基準】 (リニューアル: 2010年 ) |
| 設備
|
|
| エレベーター | 2基 |
営業マンの一言 大阪南船場・三休橋筋沿いにある管理良好の賃貸オフィスです。大阪メトロ御堂筋線 心斎橋駅徒歩2分 長堀橋駅・長堀鶴見緑地線利用可能 長堀通りより北に10mの距離・設備も充実しており管理が行き届います。リニューアル済!お勧め賃貸事務所ビル |
|

※取引態様:仲介
※上記、金額は募集条件です。 条件交渉など、詳細についてはお問合せ下さい。
※広告作成中に契約済みの場合はご容赦下さい。
※図面等現況が相違する場合は現況優先にてご容赦下さい。
ルグラン心斎橋の所在地周辺
入居テナント
物件を再検索する
ルグラン心斎橋 関連物件
ルグラン心斎橋 近隣のよく似た坪数の貸事務所
-
堺筋トラストビル
大阪市中央区博労町1
堺筋線「長堀橋」徒歩3分
15.5坪 -
堺筋MS第2ビル
大阪市中央区博労町1
堺筋線「長堀橋」徒歩4分
15.19坪 -
タイケンビル
大阪市中央区博労町2
堺筋線「長堀橋」徒歩5分
17.96坪 -
中博ビル(ナカヒロ)
大阪市中央区博労町2
堺筋線「長堀橋」徒歩5分
15.38坪 -
東邦ビル(旧:大バスビル)
大阪市中央区博労町2
堺筋線「長堀橋」徒歩6分
19.96坪 -
堺筋ビルディング
大阪市中央区島之内1
堺筋線「長堀橋」徒歩1分
15.49坪 -
第一住建東心斎橋ビル
大阪市中央区東心斎橋1
堺筋線「長堀橋」徒歩1分
18.34坪 -
日亜ビル
大阪市中央区東心斎橋2
堺筋線「長堀橋」徒歩2分
16.53坪 -
ミフネ東心斎橋
大阪市中央区東心斎橋2
堺筋線「長堀橋」徒歩4分
19.22坪 -
MMEETT(ミート)旧:プレミアム長堀ビル
大阪市中央区南船場1
堺筋線「長堀橋」徒歩4分
18.08坪

























