TAG南船場ビル 6階-No.11478
中阪 浩之ナカサカ ヒロユキ
TAG南船場ビルの豆知識
「TAG南船場ビル」は、大阪市中央区南船場4丁目にございます賃貸事務所。
大阪ミナミの中心地・心斎橋、中でもオシャレな街として人気の南船場に位置する賃貸オフィスビル。
2016年7月にクリエイティブオフィスへリノベーションし、デザイナーズ仕様に生まれ変わりました。
南船場4丁目界隈でシンボリック的存在である“オーガニックビル”の南側、2階以上の外壁が真っ黒く独特の存在感を示す、地下1階・地上8階建て。
貸室は、20~30坪のお部屋がワンフロアに3室。
隣室との壁をとりはずして、最大約80坪の広さも可能です。
大阪市営地下鉄・御堂筋線・長堀鶴見緑地線の「心斎橋駅」より徒歩3分。
四つ橋線の「四ツ橋駅」からも徒歩5分の交通至便です。
TAG南船場ビル 基本情報
| 種別 | 貸事務所(物件番号:11478) |
|---|---|
| 物件名 | TAG南船場ビル |
| 住所 | 大阪市中央区南船場4-7-15 |
| 所在階 | 6階部分号室 |
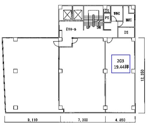
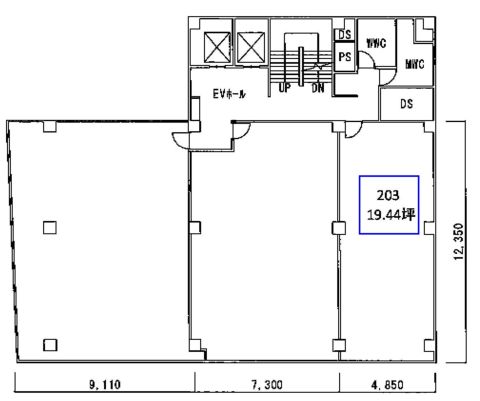
| 契約面積 | 16.01 坪・ 52.93 ㎡ |
| 最寄駅 |
御堂筋線 『
心斎橋 』
3 分
四ツ橋線 『 四ツ橋 』 6 分 長堀鶴見緑地線 『 心斎橋 』 3 分 |
| 構造 | 鉄筋コンクリート造 8階建 /地下 1 階 |
| 築年数 | 1972/1 (リニューアル: 2016/07 ) |
| 設備
|
|
| エレベーター | 2基 |
営業マンの一言 南船場リニューアル賃貸事務所ビル大阪心斎橋のデザイナーズ賃貸オフィス |
|

※取引態様:仲介
※上記、金額は募集条件です。 条件交渉など、詳細についてはお問合せ下さい。
※広告作成中に契約済みの場合はご容赦下さい。
※図面等現況が相違する場合は現況優先にてご容赦下さい。
TAG南船場ビルの所在地周辺
物件を再検索する
TAG南船場ビル 関連物件
TAG南船場ビル 近隣のよく似た坪数の貸事務所
-
御堂筋三都ビル
大阪市中央区博労町3
御堂筋線「心斎橋」徒歩3分
15.64坪 -
リーストラクチャー西心斎橋ビル
大阪市中央区西心斎橋1
御堂筋線「心斎橋」徒歩1分
19.74坪 -
心斎橋Mマンション
大阪市中央区西心斎橋1
御堂筋線「心斎橋」徒歩3分
16.58坪 -
MST心斎橋ビル
大阪市中央区東心斎橋1
御堂筋線「心斎橋」徒歩3分
16.23坪 -
石栄ビル
大阪市中央区南船場2
御堂筋線「心斎橋」徒歩4分
18.0坪 -
心斎橋イーストスクエア
大阪市中央区南船場2
御堂筋線「心斎橋」徒歩3分
18.29坪 -
ラインビルド心斎橋
大阪市中央区南船場3
御堂筋線「心斎橋」徒歩3分
15.3坪 -
シェリーズ心斎橋ビル
大阪市中央区南船場3
御堂筋線「心斎橋」徒歩3分
16.27坪 -
富士ビル南船場Ⅱ
大阪市中央区南船場3
御堂筋線「心斎橋」徒歩3分
15.0坪 -
南船場DSビル
大阪市中央区南船場3
御堂筋線「心斎橋」徒歩3分
16.54坪


















