徳銀相産ビル 6階-No.12141
中阪 浩之ナカサカ ヒロユキ
徳銀相産ビルの豆知識
「徳銀相産ビル」は、大阪市中央区島之内1丁目にございます、賃貸事務所ビル。
大阪市内を東西に貫く“長堀通り”に面した、鉄骨鉄筋コンクリート造り12階建て。
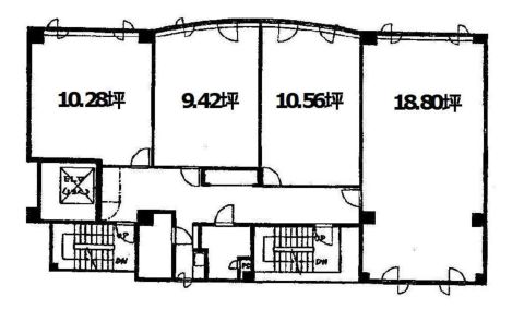
ステータスあふれたオフィスビルでありながら、約10坪という小さい区画からのご紹介ができる希少物件。
また、長堀通りに面した間口も広く、貸室内の採光も抜群です。
エレベーター・機械警備・個別空調とビルスペックも整った快適空間。
交通アクセスは、大阪市営地下鉄・堺筋線・長堀鶴見緑地線の「長堀橋駅」より徒歩3分のロケーション。
大阪の大動脈・御堂筋線の心斎橋駅へも徒歩圏内と、フットワークの良いビジネス拠点です。
ビル併設の駐車場もございますが、「徳銀相産ビル」前には約1000台収容可能な長堀地下駐車場があり、お車での来客対応もバッチリ。自動二輪車も約60台もございます。
徳銀相産ビル 基本情報
| 種別 | 貸事務所(物件番号:12141) | 
|---|---|
| 物件名 | 徳銀相産ビル | 
| 住所 | 大阪市中央区島之内1-8-12 | 
| 所在階 | 6階部分号室 | 
| 契約面積 | 10.56 坪・ 34.91 ㎡ | 
| 最寄駅 | 
 
堺筋線                  『
                  長堀橋                  』
                  3                  分
                                     長堀鶴見緑地線 『 長堀橋 』 3 分  | 
            
| 構造 | 12階建 /地下 1 階 | 
| 築年数 | 1992/11 【新耐震基準】 | 
| 設備
                     | 
            |
| エレベーター | 1基 | 
営業マンの一言 大阪・長堀橋の綺麗な賃貸事務所ビル。大通りに面した賃貸事務所ビル。広さ10坪~ご紹介できます。  | 
        |

※取引態様:仲介
            ※上記、金額は募集条件です。 条件交渉など、詳細についてはお問合せ下さい。
            ※広告作成中に契約済みの場合はご容赦下さい。
            ※図面等現況が相違する場合は現況優先にてご容赦下さい。
徳銀相産ビルの所在地周辺
物件を再検索する
徳銀相産ビル 近隣のよく似た坪数の貸事務所
- 
                    
長堀橋第25松屋ビル
大阪市中央区島之内1
堺筋線「長堀橋」徒歩1分
14.2坪 - 
                    
長堀堂
大阪市中央区東心斎橋1
堺筋線「長堀橋」徒歩1分
13.58坪 - 
                    
グローリー心斎橋
大阪市中央区東心斎橋1
堺筋線「長堀橋」徒歩1分
14.65坪 - 
                    
グランドメゾン心斎橋
大阪市中央区東心斎橋1
堺筋線「長堀橋」徒歩2分
13.39坪 - 
                    
シティコート船場
大阪市中央区南船場1
堺筋線「長堀橋」徒歩4分
12.0坪 - 
                    
NIL南船場ビル
大阪市中央区南船場1
堺筋線「長堀橋」徒歩3分
13.12坪 - 
                    
アツミビル
大阪市中央区南船場1
堺筋線「長堀橋」徒歩4分
14.42坪 - 
                    
順慶町エスアイビル
大阪市中央区南船場1
堺筋線「長堀橋」徒歩5分
11.96坪 - 
                    
Studio南船場ビル
大阪市中央区南船場1
堺筋線「長堀橋」徒歩3分
15.0坪 - 
                    
セントレ長堀ビル
大阪市中央区南船場1
堺筋線「長堀橋」徒歩3分
10.84坪 


                                   















