本町武田ビル 3階-No.12280
中阪 浩之ナカサカ ヒロユキ
本町武田ビルの豆知識
「本町武田ビル」は、大阪市中央区久太郎町3丁目にございます賃貸事務所。
大阪市内を東西にはしる“中央大通り”南側に面した、ライトグレーの10階建てオフィスビル。
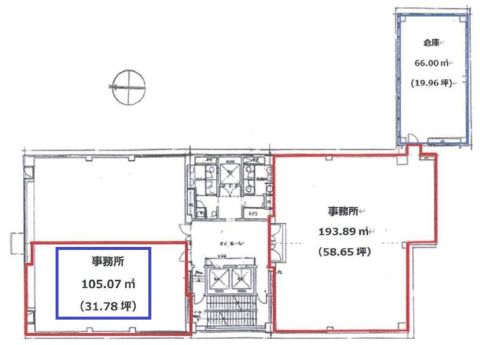
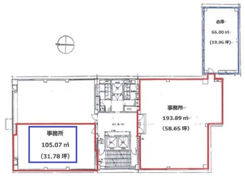
エレベーターやトイレ等の水廻りを建物中心に置いた、センターコアタイプが基本のフロア設計。
そのため道路側の貸室は明るいですが、奥側のお部屋は自然採光が採れませんので、必ず現地確認をお願いします。
オフィススペース面積は、約30坪からのご提案が可能です。
大阪市営地下鉄御堂筋線・中央線の「本町駅」より徒歩2分。
堺筋線の「堺筋本町駅」より徒歩3分と、マルチアクセス可能な、フットワークの良い大阪ビジネス拠点。
商都・大阪船場の中心地として、金融機関や飲食店舗、商店街が多く集まった、大変便利エリアです。
本町武田ビル その他の貸室情報
本町武田ビル 基本情報
| 種別 | 貸事務所(物件番号:12280) | 
|---|---|
| 物件名 | 本町武田ビル | 
| 住所 | 大阪市中央区久太郎町3-1-29 | 
| 所在階 | 3階部分北西号室 | 
| 契約面積 | 31.78 坪・ 105.06 ㎡ | 
| 最寄駅 | 
 
御堂筋線                  『
                  本町                  』
                  2                  分
                                     堺筋線 『 堺筋本町 』 3 分 中央線 『 本町 』 2 分  | 
            
| 構造 | 10階建 /地下 2 階 | 
| 築年数 | 1988/1 【新耐震基準】 (リニューアル: 2012 ) | 
| 設備
                     | 
            |
| エレベーター | 3基 | 
営業マンの一言 御堂筋・船場エリアの賃貸事務所です。大阪・中央大通り沿いに面した本町駅徒歩2分の駅近・賃貸オフィス。  | 
        |

※取引態様:仲介
            ※上記、金額は募集条件です。 条件交渉など、詳細についてはお問合せ下さい。
            ※広告作成中に契約済みの場合はご容赦下さい。
            ※図面等現況が相違する場合は現況優先にてご容赦下さい。
本町武田ビルの所在地周辺
物件を再検索する
本町武田ビル 近隣のよく似た坪数の貸事務所
- 
                    
オリックス本町ビル
大阪市西区西本町1
御堂筋線「本町」徒歩3分
39.39坪 - 
                    
JUST本町ビル
大阪市中央区安土町3
御堂筋線「本町」徒歩2分
30.82坪 - 
                    
マツダビル
大阪市中央区安土町3
御堂筋線「本町」徒歩1分
36.03坪 - 
                    
TAIRINビル
大阪市中央区淡路町4
御堂筋線「本町」徒歩3分
36.73坪 - 
                    
瓦町昭和ビル
大阪市中央区瓦町3
御堂筋線「本町」徒歩3分
35.93坪 - 
                    
ステーツ本町
大阪市中央区瓦町3
御堂筋線「本町」徒歩3分
30.83坪 - 
                    
おおきにKOKODESU瓦町四丁目
大阪市中央区瓦町4
御堂筋線「本町」徒歩4分
36.74坪 - 
                    
本町プレタビル
大阪市中央区瓦町4
御堂筋線「本町」徒歩4分
32.14坪 - 
                    
エス・ピー・アイス本町ビル
大阪市中央区北久宝寺町4
御堂筋線「本町」徒歩3分
31.5坪 - 
                    
VPO本町セントラル
大阪市中央区北久宝寺町4
御堂筋線「本町」徒歩3分
32.56坪 


                                   



















