サンアール福島11号館 3階-No.12593
営業スタッフ紹介
堀中 忠久ホリナカ タダヒサ
サンアール福島11号館の豆知識
「サンアール福島11号館ビル」は、大阪市福島区福島1丁目にございます、賃貸事務所ビルです。
阪神本線の「福島駅」より徒歩3分、JR東西線の「新福島駅」より徒歩5分、環状線の「福島駅」より徒歩5分の交通至便。
3WAYアクセス可能な、フットワークの良いビジネス拠点。
朝日放送や検察庁の北向かいに位置する、5階建て。
ワンフロア約55坪ございますが、約20~35坪に分割も可能。
角ビルですので全室採光がとれる、快適なオフィス空間です。
「サンアール福島11号館ビル」南向かいは、放送局・マンション、スーパー、キャンパス、レストラン、カフェを有する複合施設“ほたるまち”。
2008年、堂島川北側・大阪大学医学部付属病院跡地に、“情報・文化”と“にぎわい”と“居住”機能を備えた街として開発されたエリアです。
サンアール福島11号館 基本情報
| 種別 | 貸事務所(物件番号:12593) |
|---|---|
| 物件名 | サンアール福島11号館
OAフロア |
| 住所 | 大阪市福島区福島1-3-11 |
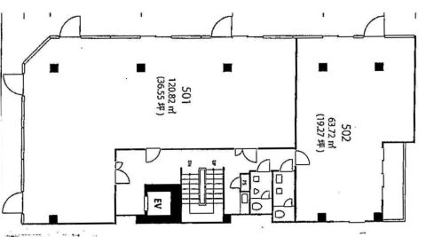
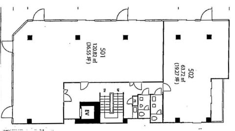
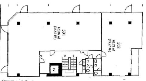
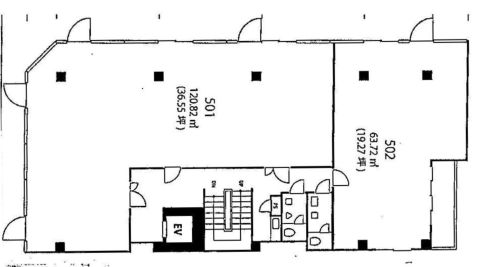
| 所在階 | 3階部分1号室 |
| 契約面積 | 21.0 坪・ 69.43 ㎡ |
| 賃料 | お電話・メールにてお問合下さい。 |
| 共益費 | お電話・メールにてお問合下さい。 |
| 月額合計 | お電話・メールにてお問合下さい。 |
| 保証金 | お電話・メールにてお問合下さい。 |
| 最寄駅 |
東西線 『
新福島 』
5 分
環状線 『 福島 』 6 分 |
| 構造 | 鉄骨造 5階建 |
| 築年数 | 1991/1 【新耐震基準】 |
| 設備
|
|
| エレベーター | 1基 |
営業マンの一言 採光の良い賃貸オフィスです。朝日放送が目の前の好立地な大阪賃貸事務所 |
|

※取引態様:仲介
※上記、金額は募集条件です。 条件交渉など、詳細についてはお問合せ下さい。
※広告作成中に契約済みの場合はご容赦下さい。
※図面等現況が相違する場合は現況優先にてご容赦下さい。
サンアール福島11号館の所在地周辺
ストリートビューを表示▼










