NLC新大阪スカイビル 7階-No.17767
営業スタッフ紹介
中阪 浩之ナカサカ ヒロユキ
NLC新大阪スカイビルの豆知識
「カルピス大阪ビル」は、大阪市淀川区西中島6丁目にございます賃貸事務所。
大通りに面した、前面ガラスウォールの7階建て。
基準階面積が約115坪ある、新大阪エリアの大型賃貸オフィスビルです。
2000年竣工、エレベーター2基、男女別シャワートイレ、駐車場等と、充実のビルスペック。
貸室は、OAフロア敷設済に、天井高が2.7mと、快適なオフィススペースが確保されています。
大阪市営地下鉄御堂筋線の「西中島南方駅」より徒歩5分。
JR新幹線の「新大阪駅」や阪急線「南方駅」へも、徒歩アクセスが可能な好立地ビジネス拠点です。
NLC新大阪スカイビル 基本情報
| 種別 | 貸事務所(物件番号:17767) |
|---|---|
| 物件名 | NLC新大阪スカイビル
道路に面した明るいオフィスです |
| 住所 | 大阪市淀川区西中島6-8-5 |
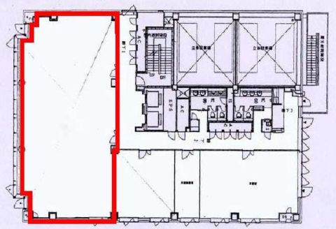
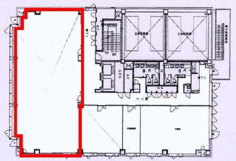
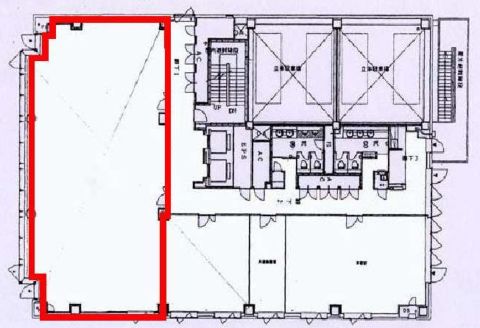
| 所在階 | 7階部分1号室 |
| 契約面積 | 84.8 坪・ 280.34 ㎡ |
| 最寄駅 |
御堂筋線 『
西中島南方 』
5 分
御堂筋線 『 新大阪 』 6 分 東海道本線 『 新大阪 』 8 分 |
| 構造 | 鉄骨造 7階建 /地下 1 階 |
| 築年数 | 2000/7 【新耐震基準】 |
| 設備
|
|
| エレベーター | 2基 |
営業マンの一言 大通りに面した大型賃貸オフィス。新大阪エリアの賃貸事務所ビル。大通り沿いの一際目立つハイグレード。西中島南方駅徒歩5分 |
|

※取引態様:仲介
※上記、金額は募集条件です。 条件交渉など、詳細についてはお問合せ下さい。
※広告作成中に契約済みの場合はご容赦下さい。
※図面等現況が相違する場合は現況優先にてご容赦下さい。
NLC新大阪スカイビルの所在地周辺
ストリートビューを表示▼
物件を再検索する
NLC新大阪スカイビル 関連物件
NLC新大阪スカイビル 近隣のよく似た坪数の貸事務所
-
新大阪KGビル
大阪市淀川区西中島3
御堂筋線「西中島南方」徒歩3分
86.4坪 -
TAIYOセンタービル
大阪市淀川区西中島4
御堂筋線「西中島南方」徒歩4分
83.15坪










