NAGASAKI 長崎ビル 3階-No.17958
堀中 忠久ホリナカ タダヒサ
NAGASAKI 長崎ビルの豆知識
「長崎ビル」は、大阪市西区江戸堀1丁目にございます、アンティーク&デザイナーズ賃貸オフィス。
天井の高さが約3メートル、2006年にリニューアルが完了し、モダンアートなオシャレなビルとして人気の高いビルです。
エレベータはございませんが、館内の不自由さを感じさせないオシャレな設計に、クリエイティブな業種の方に、高い評価をいただいております。
貸室面積は、個人の方にも使いやすい10坪前後のお部屋が中心。
管理も良く、入居テナント様の雰囲気も大変よろしく、快適なオフィス空間が広がっています。
また、来店型のオフィス・テナント使用も可能です。
ご興味のある方は是非、業種のご相談くださいませ。
場所は、大阪市営地下鉄・四つ橋線の「肥後橋駅」8番出入口より徒歩2分と、交通アクセスも抜群。
近隣には、登録有形文化財に登録されているヴォーリズ氏設計の赤レンガの“教会堂”、結婚式場の“アスタープレイス”など、これまたオシャレスポット満載のエリアでもあります。
NAGASAKI 長崎ビル 基本情報
| 種別 | 貸事務所(物件番号:17958) |
|---|---|
| 物件名 | NAGASAKI 長崎ビル
デザイナーズ。リノベーション・屋上テラスあり |
| 住所 | 大阪市西区江戸堀1-19-23 |
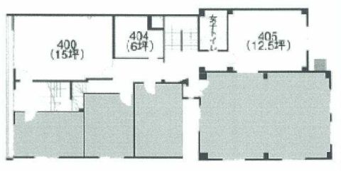
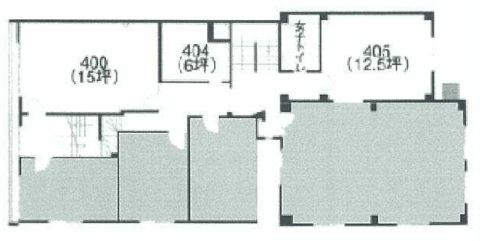
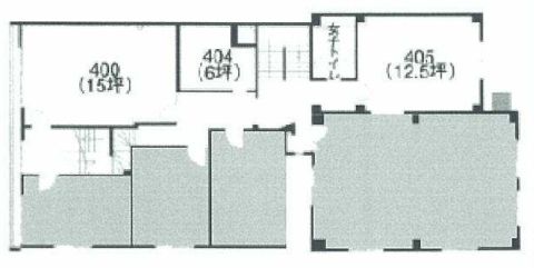
| 所在階 | 3階部分3号室 その他、貸室 |
| 契約面積 | 20.0 坪・ 66.12 ㎡ |
| 賃料 | 総額
190,000 円 (税抜)・坪単価
9,500 円/坪 (税抜) 総額 209,000 円(税含む) |
| 共益費 | 総額 賃料に含む (税抜)・坪単価 賃料に含む (税抜) 総額 賃料に含む (税含む) |
| 月額合計 | 総額 190,000 円(税抜)・坪単価 9,500 円(税抜) 総額 209,000 円 (税含む) |
| 保証金 | 6ヶ月 |
| 礼金 | 無し |
| 費用備考 | 賃貸保証加入要 |
| 最寄駅 | 四ツ橋線 『 肥後橋 』 2 分 |
| 構造 | 鉄筋コンクリート造 4階建 |
| 築年数 | / (リニューアル: 2006/05 ) |
| 設備
|
|
営業マンの一言 リノベーション デザインオフィス!天井高、約3mアンティーク&デザイナーズオフィス、天井高約3m、他とは違うオンリーワンな物件をお探しの方にお勧めです。 |
|
| 備考 | レトロ(築古)/日祝、来店可能サービス型オフィス |

※取引態様:仲介
※上記、金額は募集条件です。 条件交渉など、詳細についてはお問合せ下さい。
※広告作成中に契約済みの場合はご容赦下さい。
※図面等現況が相違する場合は現況優先にてご容赦下さい。
NAGASAKI 長崎ビルの所在地周辺
NAGASAKI 長崎ビル その他の部屋情報
物件を再検索する
NAGASAKI 長崎ビル 関連物件
NAGASAKI 長崎ビル 近隣のよく似た坪数の貸事務所
-
山下ビル
大阪市西区江戸堀1
四ツ橋線「肥後橋」徒歩1分
21.72坪 -
太陽ビル
大阪市西区江戸堀1
四ツ橋線「肥後橋」徒歩1分
23.86坪 -
イーエム肥後橋
大阪市西区江戸堀1
四ツ橋線「肥後橋」徒歩1分
20.26坪 -
肥後橋センタービル
大阪市西区江戸堀1
四ツ橋線「肥後橋」徒歩1分
22.28坪 -
肥後橋IPビル
大阪市西区江戸堀1
四ツ橋線「肥後橋」徒歩2分
23.53坪 -
肥後橋イシカワビル
大阪市西区江戸堀1
四ツ橋線「肥後橋」徒歩4分
23.8坪 -
肥後橋ビル3号館
大阪市西区江戸堀1
四ツ橋線「肥後橋」徒歩4分
20.0坪 -
KS大阪江戸堀ビル(旧:江戸堀大沼)
大阪市西区江戸堀1
四ツ橋線「肥後橋」徒歩5分
20.0坪 -
江戸堀KNビル
大阪市西区江戸堀1
四ツ橋線「肥後橋」徒歩5分
20.18坪 -
U2B BLDG.(うつぼビル)
大阪市西区京町堀1
四ツ橋線「肥後橋」徒歩2分
23.1坪






























