レオイアビル 8階-No.18821
レオイアビル 基本情報
| 種別 | 事務所・店舗(物件番号:18821) |
|---|---|
| 物件名 | レオイアビル
視認性の高い空中店舗!業種はご相談ください |
| 住所 | 大阪市西区阿波座1-12-21 |
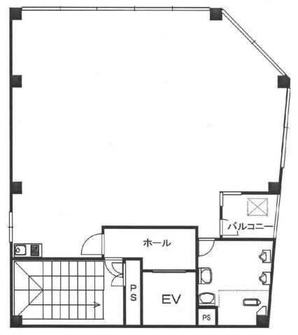
| 所在階 | 8階部分号室 |
| 契約面積 | 14.4 坪・ 47.61 ㎡ |
| 最寄駅 |
四ツ橋線 『
本町 』
1 分
中央線 『 本町 』 1 分 |
| 構造 | S(鉄骨)造 10階建 |
| 築年数 | 1988/2 【新耐震基準】 |
| 設備
|
|
| エレベーター | 1基 |
営業マンの一言 視認性抜群!中央大通りに面した角ビルです。駅近、大通り面しワンフロアオフィスビル(ローコスト&ロープライス) ■エステ・美容室・クリニック向き■各種教室向き |
|

※取引態様:仲介
※上記、金額は募集条件です。 条件交渉など、詳細についてはお問合せ下さい。
※広告作成中に契約済みの場合はご容赦下さい。
※図面等現況が相違する場合は現況優先にてご容赦下さい。
レオイアビルの所在地周辺
物件を再検索する
レオイアビル 近隣のよく似た坪数の貸事務所
-
椿堂ビル
大阪市西区阿波座1
四ツ橋線「本町」徒歩1分
15.0坪 -
MKビル
大阪市西区阿波座1
四ツ橋線「本町」徒歩1分
11.54坪 -
有恒ビル
大阪市西区阿波座2
四ツ橋線「本町」徒歩6分
10.98坪 -
本町立売堀ビル
大阪市西区立売堀1
四ツ橋線「本町」徒歩3分
12.62坪 -
第二富士ビル
大阪市西区靱本町1
四ツ橋線「本町」徒歩2分
14.0坪 -
大阪華東ビル
大阪市西区靱本町1
四ツ橋線「本町」徒歩2分
10.4坪 -
布亀ビル
大阪市西区靱本町1
四ツ橋線「本町」徒歩2分
13.5坪 -
本町井出ビル
大阪市西区靱本町1
四ツ橋線「本町」徒歩1分
13.42坪 -
EPビル
大阪市西区西本町1
四ツ橋線「本町」徒歩1分
15.0坪 -
本町新興産ビル
大阪市西区西本町1
四ツ橋線「本町」徒歩1分
11.1坪




中阪 浩之












