新御堂豊崎ビル 5階-No.19430
営業スタッフ紹介
中阪 浩之ナカサカ ヒロユキ
新御堂豊崎ビルの豆知識
「新御堂豊崎ビル」は、大阪市北区豊崎2丁目にございます、賃貸事務所ビル。
最寄駅は、大阪市営地下鉄・御堂筋線の「中津駅」より徒歩5分。
梅田エリアへも、徒歩で十分可能な好立地。
新御堂筋からは、東に数メートル入った位置ですので、お車でのアクセスもスムーズです。
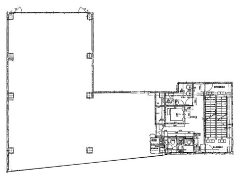
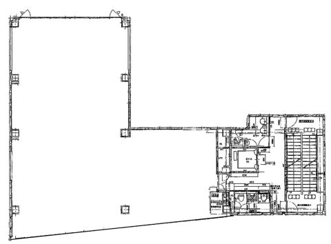
基準階面積が約70坪のワンフロア貸し。
築浅の綺麗な外観とゆったりしたエントランスが特徴的。
貸室は南面の開口が広く、明るく快適な空間です。
個別空調、機械警備、インターフォン、エレベーター、OAフロアとビルスペックも整っており、日々の管理も良好。
ビル自体に駐車場併設はございませんが、近隣での対応も可能です。
豊崎界隈は、梅田へはもちろん、各都市からの大阪の玄関口となる新大阪へのアクセスが良いこと、ビジネス拠点として人気のエリアです。
新御堂豊崎ビル 基本情報
| 種別 | 貸事務所(物件番号:19430) |
|---|---|
| 物件名 | 新御堂豊崎ビル |
| 住所 | 大阪市北区豊崎2-7-5 |
| 所在階 | 5階部分号室 |
| 契約面積 | 71.0 坪・ 234.72 ㎡ |
| 最寄駅 | 御堂筋線 『 中津 』 5 分 |
| 構造 | 鉄骨造 9階建 |
| 築年数 | 2007/3 【新耐震基準】 |
| 設備
|
|
| エレベーター | 1基 |
営業マンの一言 ワンフロア71坪の築浅オフィスビル。貸室内採光良、設備充実。諸条件柔軟に対応いたします。 |
|
| 備考 | オートロック |

※取引態様:仲介
※上記、金額は募集条件です。 条件交渉など、詳細についてはお問合せ下さい。
※広告作成中に契約済みの場合はご容赦下さい。
※図面等現況が相違する場合は現況優先にてご容赦下さい。
新御堂豊崎ビルの所在地周辺
ストリートビューを表示▼























