本町 店舗 2階-No.19605
 中阪 浩之
中阪 浩之ナカサカ ヒロユキ
当該ビルの豆知識
「立売堀木津ビル」は、大阪市西区立売堀1丁目にございます賃貸事務所。
四ツ橋筋の東側沿い、西本町エリアに位置する10階建て。
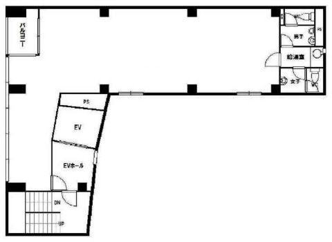
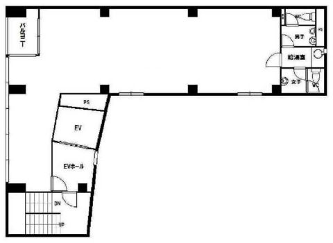
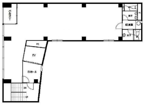
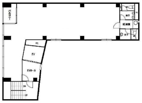
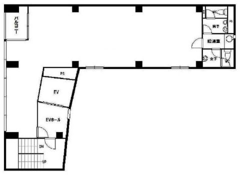
広さ約35坪のワンフロア貸し。
L字型形状の貸室は、面白いレイアウトが組めそうな予感。
独立性が確保されたビジネス空間は、音モレの心配もなく、また、大通りに面しているので視認性が高く、来店型オフィスや営業会社のオフィスにオススメです。
大阪市営地下鉄四つ橋線の「本町駅」より徒歩2分。
御堂筋線や中央線へも徒歩圏内、本町や心斎橋など御堂筋エリアへのアクセスも良い、ビジネス拠点です。
本町 店舗 基本情報
| 種別 | 店舗(物件番号:19605) | 
|---|---|
| 物件名 | 本町 店舗 美容室店舗跡です。 | 
| 住所 | 大阪市西区立売堀1 | 
| 所在階 | 2階部分フロア号室 | 
| 契約面積 | 34.0 坪・ 112.40 ㎡ | 
| 賃料 | 総額
448,800 円 (税抜)・坪単価
13,200 円/坪 (税抜) 総額 493,680 円(税含む) | 
| 共益費 | 総額 112,200 円 (税抜)・坪単価 3,300 円/坪 (税抜) 総額 123,420 円 (税含む) | 
| 月額合計 | 総額 561,000 円(税抜)・坪単価 16,500 円(税抜) 総額 617,100 円 (税含む) | 
| 敷金 | 408,000 円 | 
| 礼金 | 897,600円(税含む) | 
| 費用備考 | 賃貸保証加入要/その他諸費用あり | 
|  | |
| 最寄駅 | 四ツ橋線                  『
                  本町                  』
                  2                  分 御堂筋線 『 本町 』 9 分 中央線 『 本町 』 10 分 | 
| 構造 | 鉄骨鉄筋コンクリート造 10階建 | 
| 築年数 | 1989/5 【新耐震基準】 | 
| 設備 | |
| エレベーター | 1基 | 
| 営業マンの一言管理良好の賃貸事務所ビル。 大阪メトロ四ツ橋線 本町駅徒歩2分 四ツ橋筋に面したワンフロア貸事務所!賃料、ロープライスに設定。グレードも良 ■エステ・美容室・クリニック向き■各種教室向き | |

※取引態様:仲介
            ※上記、金額は募集条件です。 条件交渉など、詳細についてはお問合せ下さい。
            ※広告作成中に契約済みの場合はご容赦下さい。
            ※図面等現況が相違する場合は現況優先にてご容赦下さい。
本町 店舗の所在地周辺
物件を再検索する
本町 店舗 近隣のよく似た坪数の貸事務所
- 
                    JLビル大阪市西区阿波座1 
 四ツ橋線「本町」徒歩1分
 30.0坪
- 
                    カーニープレイス本町ビル大阪市西区阿波座1 
 四ツ橋線「本町」徒歩1分
 38.69坪
- 
                    大槻ビル大阪市西区阿波座1 
 四ツ橋線「本町」徒歩2分
 30.0坪
- 
                    西本町中央ビル大阪市西区阿波座1 
 四ツ橋線「本町」徒歩3分
 32.94坪
- 
                    NANKAI西本町ビル大阪市西区阿波座2 
 四ツ橋線「本町」徒歩6分
 39.32坪
- 
                    中井産業ビル2号館大阪市西区立売堀1 
 四ツ橋線「本町」徒歩3分
 34.72坪
- 
                    HOWA ビル大阪市西区立売堀1 
 四ツ橋線「本町」徒歩5分
 32.82坪
- 
                    ビジネスゾーン本町西大阪市西区立売堀2 
 四ツ橋線「本町」徒歩6分
 37.12坪
- 
                    DGビルなにわ筋大阪市西区立売堀2 
 四ツ橋線「本町」徒歩7分
 32.98坪
- 
                    日東ビル大阪市西区立売堀2 
 四ツ橋線「本町」徒歩6分
 33.67坪

 お問合せリスト・物件リクエスト
 お問合せリスト・物件リクエスト 電話でお問合せ
 電話でお問合せ



 
                  
                


 
                                   




























