FLAGSビル(フラッグスビル) 1階-No.20933
FLAGSビル(フラッグスビル) その他の貸室情報
FLAGSビル(フラッグスビル) 基本情報
| 種別 | 事務所・店舗(物件番号:20933) |
|---|---|
| 物件名 | FLAGSビル(フラッグスビル)
谷町筋面す 間口広い! |
| 住所 | 大阪市中央区谷町3-2-11 |
| 所在階 | 1階部分フロア号室 |
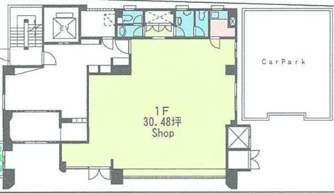
| 契約面積 | 31.28 坪・ 103.41 ㎡ |
| 最寄駅 |
谷町線 『
谷町四丁目 』
1 分
中央線 『 谷町四丁目 』 1 分 谷町線 『 天満橋 』 8 分 |
| 構造 | 鉄骨鉄筋コンクリート造 9階建 /地下 1 階 |
| 築年数 | 1996/10 【新耐震基準】 |
| 設備
|
|
| エレベーター | 1基 |
営業マンの一言 谷町筋面す美築ビル大阪メトロ谷町線 谷町四丁目駅徒歩1分の好立地 中央線・京阪線 天満橋駅も利用可能 谷町筋に面した視認性の高い賃貸ビル ■エステ・美容室・クリニック向き■飲食店舗向き |
|

※取引態様:仲介
※上記、金額は募集条件です。 条件交渉など、詳細についてはお問合せ下さい。
※広告作成中に契約済みの場合はご容赦下さい。
※図面等現況が相違する場合は現況優先にてご容赦下さい。
FLAGSビル(フラッグスビル)の所在地周辺
物件を再検索する
FLAGSビル(フラッグスビル) 関連物件
FLAGSビル(フラッグスビル) 近隣のよく似た坪数の貸事務所
-
シイナHDビル谷町
大阪市中央区和泉町1
谷町線「谷町四丁目」徒歩2分
39.22坪 -
川友ビル
大阪市中央区糸屋町2
谷町線「谷町四丁目」徒歩5分
35.0坪 -
五苑第二ビル
大阪市中央区内本町1
谷町線「谷町四丁目」徒歩1分
30.0坪 -
パナシアビル
大阪市中央区内本町1
谷町線「谷町四丁目」徒歩1分
32.31坪 -
サンシャイン大手前ビル
大阪市中央区谷町2
谷町線「谷町四丁目」徒歩1分
40.0坪 -
常盤セントラルビル
大阪市中央区常盤町1
谷町線「谷町四丁目」徒歩2分
31.03坪 -
ヒカリビル
大阪市中央区常盤町2
谷町線「谷町四丁目」徒歩3分
35.0坪 -
大江ビル
大阪市中央区農人橋1
谷町線「谷町四丁目」徒歩1分
37.35坪 -
AXIS谷町ビル(アクシス谷町)
大阪市中央区農人橋1
谷町線「谷町四丁目」徒歩3分
32.06坪 -
M.BALANCE+ 大阪谷町
大阪市中央区鎗屋町2
谷町線「谷町四丁目」徒歩5分
31.88坪







堀中 忠久













