セントアーバンビル 3階-No.21072
中阪 浩之ナカサカ ヒロユキ
セントアーバンビルの豆知識
「セントアーバンビル」は、大阪市淀川区西中島3丁目にございます、賃貸事務所ビルです。
新御堂筋の西中島3交差点より、南東スグの8階建て。
スタイリッシュな外観と、モノトーンの落ち着いたエントランスは、まさにアーバンテイストな大阪賃貸オフィスです。
エントランスはオートロック式。
50インチの大型液晶テレビと自販機が完備されたリフレッシュルームや各フロアには喫煙室があります。
またトイレとは別に、女性専用のパウダールームが設置。収納スペースもある、女子力の高いオフィスビルです。
貸室は天井高が280m。
フレキシブルなレイアウトが可能なライン照明が導入されており、オフィスワークの快適性が確保されています。
大阪市営地下鉄・御堂筋線の「西中島南方駅」徒歩2分。
阪急線「南方駅」より徒歩3分、JR・新幹線の「新大阪駅」からも徒歩7分と、好アクセスな貸しオフィスビルです。
セントアーバンビル その他の貸室情報
セントアーバンビル 基本情報
| 種別 | 貸事務所(物件番号:21072) |
|---|---|
| 物件名 | セントアーバンビル |
| 住所 | 大阪市淀川区西中島3-23-15 |
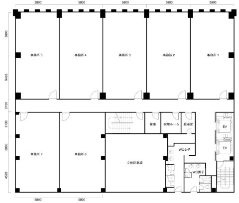
| 所在階 | 3階部分号室 |
| 契約面積 | 20.35 坪・ 67.28 ㎡ |
| 最寄駅 |
御堂筋線 『
西中島南方 』
2 分
御堂筋線 『 新大阪 』 7 分 |
| 構造 | S(鉄骨)造 8階建 |
| 築年数 | 2007/4 【新耐震基準】 |
| 設備
|
|
| エレベーター | 2基 |
営業マンの一言 新大阪エリア注目のハイスペック賃貸事務所ビルです。大阪メトロ御堂筋線 西中島南方駅徒歩2分 新大阪駅徒歩圏内 築浅物件 外観、内装、設備等文句なしに良い物件 屋上庭園、各階喫煙室、リフレッシュルーム完備 |
|
| 備考 | リフレッシュルーム/オートロック |

※取引態様:仲介
※上記、金額は募集条件です。 条件交渉など、詳細についてはお問合せ下さい。
※広告作成中に契約済みの場合はご容赦下さい。
※図面等現況が相違する場合は現況優先にてご容赦下さい。
セントアーバンビルの所在地周辺
物件を再検索する
セントアーバンビル 関連物件
セントアーバンビル 近隣のよく似た坪数の貸事務所
-
野元ビル
大阪市淀川区西中島1
御堂筋線「西中島南方」徒歩4分
23.57坪 -
大協シャトービル
大阪市淀川区西中島1
御堂筋線「西中島南方」徒歩3分
20.0坪 -
NLC新大阪サウスビル
大阪市淀川区西中島2
御堂筋線「西中島南方」徒歩4分
20.34坪 -
川久センタービル
大阪市淀川区西中島2
御堂筋線「西中島南方」徒歩8分
24.71坪 -
EPO新大阪ビルディング
大阪市淀川区西中島3
御堂筋線「西中島南方」徒歩2分
22.88坪 -
サムティ西中島ビル
大阪市淀川区西中島3
御堂筋線「西中島南方」徒歩3分
24.36坪 -
新三宝ビル
大阪市淀川区西中島3
御堂筋線「西中島南方」徒歩1分
24.9坪 -
新大阪⑪山よしビル
大阪市淀川区西中島3
御堂筋線「西中島南方」徒歩3分
20.0坪 -
AMUSE-1 アミューズワン
大阪市淀川区西中島3
御堂筋線「西中島南方」徒歩2分
22.44坪 -
三好第2ビル
大阪市淀川区西中島3
御堂筋線「西中島南方」徒歩1分
21.78坪






















