ジェイ・プライド順慶ビル 4階-No.21581
丹羽 美智子ニワミチコ
ジェイ・プライド順慶ビルの豆知識
「順慶ビルディング」は、大阪市中央区南船場2丁目にございます賃貸事務所ビル。
堺筋より50Mほど西に入ったシックな外観の地下1階・地上6階建て。
築年数は古いですが、2004年12月に全面リニューアル。
オシャレなデザインオフィスに生まれ変わりました。
貸室は約4坪~10坪と、使い易い広さが中心となり、個人様や独立・開業の事務所として人気の高いビルです。
大阪市営地下鉄・堺筋線・長堀鶴見緑地線の「長堀橋駅」より徒歩5分。
「堺筋本町駅」からも徒歩6分、御堂筋線「心斎橋駅」も徒歩圏内と、マルチアクセスが可能。
フットワークとロケーションのよいビジネス拠点です。
ジェイ・プライド順慶ビル その他の貸室情報
| 階 | 号室 | 坪数 | ㎡数 | 賃料 | 共益費 | 敷金 | |
|---|---|---|---|---|---|---|---|
| 2階 | 7 | 3.32坪 | 10.98㎡ | 41,000 円 | 9,500 円 | 100,000 円 | ![]() |
| 6階 | 8 | 3.92坪 | 12.96㎡ | 49,000 円 | 11,000 円 | 100,000 円 | ![]() |
ジェイ・プライド順慶ビル 基本情報
| 種別 | 事務所・店舗(物件番号:21581) |
|---|---|
| 物件名 | ジェイ・プライド順慶ビル |
| 住所 | 大阪市中央区南船場2-2-28 |
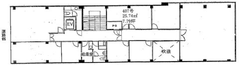
| 所在階 | 4階部分7号室 |
| 契約面積 | 7.79 坪・ 25.76 ㎡ |
| 最寄駅 |
堺筋線 『
長堀橋 』
2 分
御堂筋線 『 心斎橋 』 7 分 |
| 構造 | 鉄筋コンクリート造 6階建 |
| 築年数 | / |
| 設備
|
|
| エレベーター | 1基 |
営業マンの一言 大阪・心斎橋、約4坪からのスモール貸事務所です。大阪メトロ堺筋線 堺筋本町・中央線・御堂筋線利用可能 リニューアルしたオシャレな南船場のデザインオフィス。 |
|

※取引態様:仲介
※上記、金額は募集条件です。 条件交渉など、詳細についてはお問合せ下さい。
※広告作成中に契約済みの場合はご容赦下さい。
※図面等現況が相違する場合は現況優先にてご容赦下さい。
ジェイ・プライド順慶ビルの所在地周辺
物件を再検索する
ジェイ・プライド順慶ビル 関連物件
ジェイ・プライド順慶ビル 近隣のよく似た坪数の貸事務所
-
中博ビル(ナカヒロ)
大阪市中央区博労町2
堺筋線「長堀橋」徒歩5分
6.9坪 -
クレディ長堀橋ビル
大阪市中央区島之内1
堺筋線「長堀橋」徒歩1分
7.59坪 -
グランドメゾン心斎橋
大阪市中央区東心斎橋1
堺筋線「長堀橋」徒歩2分
5.67坪 -
TABIYADOビル心斎橋
大阪市中央区南船場1
堺筋線「長堀橋」徒歩5分
8.47坪 -
ブルーク長堀橋ビル
大阪市中央区南船場1
堺筋線「長堀橋」徒歩5分
7.68坪 -
ワイケー南船場ビル(旧:ライト南船場)
大阪市中央区南船場1
堺筋線「長堀橋」徒歩3分
8.88坪 -
長堀八千代ビル
大阪市中央区南船場1
堺筋線「長堀橋」徒歩2分
6.67坪 -
長堀ビル
大阪市中央区南船場1
堺筋線「長堀橋」徒歩1分
8.0坪 -
長堀橋アーバンライフ府文紙ビル
大阪市中央区南船場1
堺筋線「長堀橋」徒歩1分
6.91坪 -
日宝長堀ビル
大阪市中央区南船場2
堺筋線「長堀橋」徒歩1分
7.62坪



















