ザ・セヤマビル 8階-No.21683
ザ・セヤマビル その他の貸室情報
ザ・セヤマビル 基本情報
| 種別 | 貸事務所(物件番号:21683) |
|---|---|
| 物件名 | ザ・セヤマビル |
| 住所 | 大阪市北区西天満5-1-1 |
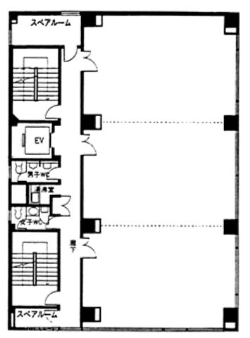
| 所在階 | 8階部分号室 |
| 契約面積 | 58.2 坪・ 192.40 ㎡ |
| 最寄駅 |
谷町線 『
南森町 』
1 分
堺筋線 『 南森町 』 1 分 |
| 構造 | 9階建 /地下 1 階 |
| 築年数 | 1989/11 【新耐震基準】 |
| 設備
|
|
| エレベーター | 1基 |
営業マンの一言 南森町駅徒歩1分の好立地地下鉄南森町駅から徒歩1分。梅田駅へは1駅。高速道路入口すぐの好立地ビル |
|

※取引態様:仲介
※上記、金額は募集条件です。 条件交渉など、詳細についてはお問合せ下さい。
※広告作成中に契約済みの場合はご容赦下さい。
※図面等現況が相違する場合は現況優先にてご容赦下さい。
ザ・セヤマビルの所在地周辺
ストリートビューを表示▼
物件を再検索する
ザ・セヤマビル 近隣のよく似た坪数の貸事務所
-
SRビル梅新
大阪市北区西天満6
谷町線「南森町」徒歩6分
59.88坪 -
エル・エスト不動産天満ビル(新日本天満)
大阪市北区東天満1
谷町線「南森町」徒歩4分
50.0坪





中阪 浩之





